Sistema de Bibliotecas SENA
Estructura curricular:
Albañilería en restauración de edificaciones
Módulo: Recuperación de elementos y características arquitectónicas
Servicio Nacional de Aprendizaje SENA
Dirección Regional
Darío Montoya Mejía
SENA Regional Cladas Dirección General
Francisco Javier Jaramillo Hoyos
Centro de Industria y construcción
Subdirector de Centro
Orlando López Vinasco
Equipo de trabajo elaboración Estructura Curricular:
Asesoría Pedagógica:
Dra. Luz Helena Gómez D.
Instructores:
Tec. Ubaldo González A.
Tec. Fabio Ancízar Yepez C.
Arq. Gloria Amparo García H.
Asesoría Técnico Pedagógica:
Bibliotecas SENA regional Caldas
Escuela taller Cartagena de Indias
Arquitectos:
Germán Bustamante - Director
Germán Fonseca - Coordinador de estudios
Rodrigo Arteaga - Docente
SENA Regional Bolivar:
Dr. Amoldo Solano - Subdirector de Centro de Industria y Construcción
José de los Reyes Torres - Coordinador académico
Ingenieros:
Pedro Tapia - Instructor
Rafael Imitola Castilla - Instructor
Apoyo en la elaboración de la cartilla didáctica:
Secretaría de cultura del departamento de Caldas
Universidad nacional de Colombia sede Manizales
Biblioteca Central
Biblioteca facultad de Arquitectura
“Prohibido la reproducción parcial o total con ánimo de lucro. Su distribución es gratuita y su utilización para fines exclusivos de la Formación Profesional Integral del SENA”
El SENA en su proceso de fortalecimiento de la formación Profesional Integral a nivel nacional, fomenta diferentes programas que respondan a la creciente demanda del mercado laboral; entre ellos la estructura curricular "ALBAÑILERÍA EN RESTAURACIÓN DE EDIFICACIONES".
Este programa esta encaminado a promover y formar personas capacitadas para afrontar con responsabilidad y ser parte activa de la intervención en inmuebles bienes de interés cultural del país; además de concientizar a los estudiantes de este programa, de la importancia de conservar, preservar, cuidar y mantener con responsabilidad, las diferentes manifestaciones culturales que conforman el patrimonio Nacional, una de las manifestaciones es la Arquitectura.
El presente documento, está dirigido en primera instancia a los estudiantes de Albañilería en Restauración de Edificaciones, y a todas aquellas personas involucradas en la conservación y restauración del Patrimonio Arquitectónico y Urbano a nivel Nacional.
Juan Carlos Gallego López - Arquitecto y Especialista en Conservación y Restauración del Patrimonio Arquitectónico.
La realización del trabajo de obras de primeros auxilios y obras preliminares, requiere el empleo de materiales, equipos y herramientas mínimos. Entre el equipo se necesita:
Decámetro: Preferiblemente los de tela por el poco peso, facilidad de manejo y ningún peligro de que se parta, rompa o doble la cinta cuando se la pisa por descuido.
Cinta métrica o flexómetro: Mínimo de 5.00 m. El más recomendable es el de 7.50 metros por el ancho, grosor y rigidez de la cinta, lo que lo hace útil para medir alturas importantes sin la ayuda de otros instrumentos.
Planillera: Plástica o de madera, con gancho para sujetar hojas tamaño oficio.
Hojas: Blancas de papel Bond tamaño oficio para el dibujo de los croquis y la anotación de las medidas. Cuando se emplea papel cuadriculado, debe ser de tono muy tenue, es preferible al blanco solamente por la facilidad y rapidez que se logra en
la labor de graficación.
Portaminas: Para minas de 0.5 o 0.7 mm, con borrador, y minas de repuesto. Es recomendable que se cuente con los dos tipos de portaminas.
Manguera de niveles: De media pulgada de diámetro y de 10 ó 15 m de longitud. En algunas casas es importante un nivel de hilo y siempre con una madeja de hilo o piola, de aprox. 20 m. El hilo templado sirve para determinar irregularidades en los muros (pandeos. curvaturas, entre otros) y para obtener las alturas de las claves en los arcos y los recorridos o perfiles de los mismos cuando muestran irregularidades.
Nivel metálico: De aproximadamente 40 centímetros de longitud.
Escuadra: Plástica o metálica, tamaño grande (aproximadamente 60 cm de hipotenusa).
Pesa de centro: Con su piola de aprox. 10 m de longitud.
Una vara delgada: De tres o más metros de longitud. Se emplea para facilitar tomas de plomos y de medidas.
Linternas: Grande y pequeña. Es de gran importancia y necesidad pues en muchas ocasiones no todos los sitios del inmueble tienen facilidades de iluminación natural o artificial.
Escalera: Como mínimo una escalera de tres metros.
Extensión eléctrica: Es indispensable para poder conectar algunos equipos y para poder llevar luz a algunos sitios.
Andamios: Estructura o armazón de madera o metálica, que facilita el trabajo en lugares altos, de difícil alcance para la altura normal del trabajador. (Lo veremos detalladamente en la presente cartilla).
En el proceso de obras de primeros auxilios como en el levantamiento arquitectónico patrimonial, se recomienda que estos andamios cuenten con teleras suficientes para trabajos determinados como recuperación de elementos significativos, toma de niveles, toma de medidas, etc.
Manilla: Se usa para la recuperación de algunos elementos significativos.
Casco de protección: Como elemento de protección indispensable de todo el personal que labore en cualquier obra.
Cámara fotográfica: De vital importancia para el trabajo de levantamiento arquitectónico patrimonial.
Carretilla, carreta o buggy: Equipo utilizado para el traslado de materiales, consta de un platón plástico o metálico; una rueda de caucho o metal, dos manijas que a su vez son soporte estructural y sirven para su conducción; y dos patas que sirven como soporte de piso, quedando a nivel.
Cincel: Herramienta acerada, de distintas formas, comúnmente cilíndricas, ente 20 y 35 cm de longitud, y de diferentes espesores según el trabajo a desempeñar; en uno de sus extremos termina en forma de punta o de pala, y en el otro extremo termina en forma de cabeza de puntilla sirviendo para recibir impactos.
Cimbra: Instrumento cerrado, por lo general hecho a mano con material de pvc (Con polvo mineral de color por su interior); atravesado por un hilo, que al impregnarse con el color mineral, sirve para señalar líneas como base de diferentes niveles.
Codal: Regla o canal metálica o de madera de 1 a 3 m longitud normalmente, por 5 cm de ancho y 10 cm de alto; utilizada para pulir o moldear superficies planas, en el
proceso de repello, revoque o pañete. Es conocido también como Boquillera.
Espátula: Paleta pequeña, compuesta por dos partes, La base o mango, de material plástico o madera; y la otra parte, de material por lo general metálico; que se usa para mezclar, resanar o raspar superficies.El mercado ofrece diferentes dimensiones no solo de longitud, sino también del ancho de la parte metálica de trabajo.
Escuadra: Instrumento de metal o de madera, compuesto elementos o reglas, dispuesto formando un ángulo de 900; se emplea para medir, trazar y verificar ángulos.
Hisopo: Manojo de fibra, fique o cabuya, empleado como brocha para esparcir agua, cal, pintura, etc.
Llana: Herramienta compuesta por una plancha metálica o de madera (algunas lisas y otras dentadas), con cabo o manigueta, empleada para extender mezclas, pulir pañetes, revoques, pega de enchapes, etc; y todo tipo de acabados.
Antes de explicar las diferentes fases del informe inicial, es necesario conocer los materiales y equipo necesario para el desarrollo de esta actividad y el desarrollo de todo el trabajo a realizar en las Obras de Primeros Auxilios y Preliminares.
Martillo de caucho o mazo: Herramienta para golpear, por lo general de caucho. Es usado en construcción para vibrar el concreto, golpeando la formaleta; se utiliza también para la pega de enchapes.
Maceta: Martillo con cabeza metálica cuadrangular simétrica, con mango generalmente de madera; que sirve para impactar con fuerza; el tamaño de esta herramienta es proporcional a su peso, siendo empleado en construcción varios tipos de esta herramienta según el trabajo a desarrollar.
Metro: Unidad de longitud, basada en el sistema métrico decimal.
Nivel de burbuja: Herramienta empleada para verificar la verticalidad o la horizontalidad de una superficie. Consta de burbujas de acrílico transparente o vidrio, llenas de líquido internamente, dejando espacio únicamente para una burbuja de aire; insertadas en una base plástica, metálica o de madera; que cuando la burbuja de aire queda entre las dos líneas demarcadas en el vidrio, se dice que la superficie sobre la cual se asienta, está a nivel.
Nivel de manguera: Manguera plástica transparente, empleada para pasar niveles por medio del sistema de
vasos comunicantes, la manguera debe ser de un diámetro aconsejable de 3/8", o de e 1/2 " (Por ningún motivo deben formarse burbujas de aire al interior de la manguera.
Pala: Herramienta elaborada en lámina de acero, de forma cuadrada o redonda, que está sostenida por un mango de madera alargado y redondo. Es usada en obra para limpiar, recoger, mezclar, etc; todo tipo de materiales de la construcción.
Pistola de calafateo: Herramienta metálica, en la cual se introducen tubos que contienen en su interior materiales plásticos, siliconados o epóxicos; y que~ se utiliza generalmente en la aplicación de dichos materiales.
Plomada de centro o de punto: Instrumento metálico con forma cónica o de trompo, que se encuentra amarrado a una cuerda. Este instrumento es empleado para verificar verticalidades, definir desplomes, o definir puntos.
Toda obra de intervención en un inmueble requiere de cierres interiores y exteriores provisionales.
La función de dicho cierre es brindar seguridad a los transeúntes, al exterior e interior del inmueble, evitar el libre acceso a determinadas zonas o áreas del edificio, garantizar la seguridad del personal de la obra, etc.
Estos cierres provisionales deben estudiarse de modo tal que cumplan varias funciones:
Comúnmente los cierres provisionales son ejecutados con materiales de desperdicio de la obra, con retazos o con elementos poco adecuados; sin embargo existen materiales especiales para la realización como:
Cintas de cerramiento
Tela de recubrimiento de edificios (Poliflex, Constructex) Costales de fibra
Madera
Teja ondulada metálica
Lámina metálica
Cintas de cerramiento:
Son bandas plásticas en colores rojo, amarillo, negro o sus combinaciones, de diferentes dimensiones y anchos; tiene por objetivo demarcar un determinado espacio.
Tela de recubrimiento de edificios(Poliflex, Constructex):
Producto comercial que ofrece el mercado, elaborado en polietileno de alta densidad, con pequeñas perforaciones; de anchos variables de 1.5 a 3 metros, empacado en rollos de hasta 200 metros lineales. En colores azul, verde o blanco.
Este tipo de cerramiento permite la ventilación permanente de la obra.
Se debe tener en cuenta que este material se soporta en estructura de madera, o en cualquier otro material que garantice estabilidad.
Madera:
Materiales empleados anteriormente en los cierres provisionales. Hoy se emplea para cerrar y proteger ciertos espacios interiores, pero a nivel externo ha sido paulatinamente desplazado por los materiales sintéticos, debido a los altos costos que la madera representa, además de las nuevas políticas de sostenibilidad del medio ambiente tanto a nivel nacional como internacional se vienen aplicando, lo que implica la racionalización de la madera como material de construcción.
Lámina metálica y teja ondulada metálica:
Material empleado con cierta frecuencia en los cerramientos de algunos inmuebles. Presenta como principales limitaciones el costo que tiene para grandes extensiones, así como sus remates en ciertas ocasiones cuando este no se instala con el debido cuidado, puede ocasionar accidentes por sus formas puntiagudas y cortantes. Se emplea lámina metálica de calibres 31 y 33; o el uso de teja ondulada metálica.
Este material debe tener estructura en madera que la soporte, o en cualquier otro material que le garantice estabilidad.
Costales de fibra:
Se emplean costales de fibra que ya han sido usados; son abiertos por sus dos lados más largos para generar una porción de tela que sirva como parte de cerramiento, la unión de varias, ofrecen el cerramiento total necesario.
Este material también debe tener una estructura en madera que la soporte, o en cualquier otro material que garantice estabilidad.
Los cierres provisionales pueden ser exteriores o interiores:
Los cierres exteriores:
Son cierres que se ejecutan para proteger el conjunto o el área total del inmueble o la porción de terreno a intervenir.
En algunas ocasiones se utilizan antejardines, andenes y demás espacios exteriores inmediatos al inmueble.
Como cierres exteriores, encontramos algunos que cubren todo el edificio o parte de este; la tela de recubrimiento es un material bastante útil, permite que el inmueble se encuentre en obra permanente exterior y evita gran cantidad de accidentes debidos a caída material, escombros, diferentes objetos o herramientas que por error humano o sismo puedan desprenderse, también permiten la ventilación permanente del inmueble.
El comercio ofrece en medidas de 4 m a 8 m de ancho, y su forma son empaque son rollos hasta de 1200 m lineales.
Los cierres Interiores:
Son cierres que se ejecutan para asegurar espacios interiores del
inmueble, bien sea porque presenta inseguridad estructural, o porque
en dicho espacio se encuentra localizado o guardado algún tipo de
material o equipo especial.
Luego de recorrido el inmueble exteriormente, de estudiarse las potencialidades de su localización, de analizar los puntos o áreas que serán empleadas como espacios de localización temporal de alguna actividad (Ver capítulo de construcciones temporales); se procede a realizar y ejecutar una propuesta de cierre provisional exterior que contemple punto de acceso, material a emplear, características del terreno donde se localiza, desniveles, etc.
Así mismo, se describen los problemas que se detecten en pisos, entrepisos, techos y cubiertas, destacando áreas con derrumbe parcial, total o potencial. Allí también se anota si a criterio propio se debe apuntalar, asegurar, algún elemento, porqué razones y su posible modo y sistema de apuntalamiento. Interiormente se realiza también la propuesta de cerramiento de los espacios que así lo requieran, bien sea por seguridad, por daños estructurales, por almacenamiento de material, etc.
Son construcciones provisionales que ofrecen la posibilidad de llegar a todos los puntos de una obra con el fin de permitir su realización. Los principios esenciales de estas construcciones temporales son: seguridad y solidez, rapidez de montaje y desmontaje (factor de economía en el transporte y conservación) y posibilidad de emplear nuevamente el material.
El establecimiento de los andamios es objeto de reglamentaciones que determinan las dimensiones mínimas a adoptar.
Un andamio debe soportar las cargas verticales (permanentes) y las cargas horizontales (accidentales).
Cargas verticales: Influye el peso del propio andamio, una carga permanente que puede conocerse con exactitud, y la sobrecarga o peso de los obreros que ocupan el andamio, así como el de los útiles y materiales situados al alcance de las obras. Tales sobrecargas son muy variables, lo que obliga a calcular los andamios para soportar esfuerzos máximos.
La acción de las cargas verticales sobre los puntales se traduce en dos peligros para éstos: su rotura por flexión o su deslizamiento sobre el piso.
La rotura por flexión: Se evita con la unión de los puntales por medio de cruces de San Andrés o de riostras, los que pasan a constituir el esqueleto del andamio. El deslizamiento sobre el piso puede evitarse con la fijación de los pies de los puntales por medio de patines que actúen como anclajes o placas de basamento y también con la introducción de los pies de los postes en el piso.
Cargas horizontales:
Son las cargas debidas a la acción de los vientos y de las máquinas elevadoras que, fijadas al andamio, tienden a desequilibrarlo. Para oponerse a las cargas horizontales, es necesario entramar cuidadosamente el andamio y unirlo al muro mediante piezas horizontales que se introducen en mechinales dejados en el muro para este fin.
Ciertos términos relativos a los andamios no necesitan aclaración por ser de uso extremadamente corriente, como caballetes, escaleras de mano, de tijera, tablones, etcétera. Otros, en cambio, por ser menos usuales, convienen explicar su significado:
Placas de basamento: piezas de madera que sirven de apoyo del andamio.
Patines: anclajes para fijar al suelo los pies de los montantes.
Puntales: montantes verticales que reciben el nombre de postes cuando, en lugar de estar dotados de patines o descansar sobre placas de basamento, se introducen en el piso.
Puentes: piezas horizontales, fijadas a los montantes, en las que descansa la plataforma de trabajo.
Rodapiés: tableros de 0,15 a 0,25 m. de altura colocados en las plataformas de trabajo para evitar que se caigan las herramientas y materiales que emplean los obreros.
Barandas: piezas horizontales alargadas que se colocan a 90 cm. de la plataforma de trabajo para proteger al personal.
Aleros: planchas oblicuas que se sitúan en el borde exterior para evitar la caída de materiales.
Cruces de San Andrés: cruces en forma de aspa unidas a los montantes para independizar el conjunto.
Entramados: conjunto de piezas de madera o metálicas que aseguran la estabilidad del andamio y que pueden ir fijados al muro o al piso.
Madera:
Material a utilizar en estos andamios son los rollizos de madera descortezados y tableros de un espesor mínimo de 4 cm., previamente rectificados; la unión puede realizarse con placas de hierro de 8 mm. de espesor.
Metálicos: Permiten todo tipo de montajes, andamios fijos o móviles, torres por elevación, andamiajes sobre suelo liso o en pendiente, etcétera, La disposición de los andamios metálicos consiste generalmente en la yuxtaposición de tubos de acero dulce de 40 a 50 mm. de diámetro; básicamente están formados por pórticos y riostras de estabilidad, que junto con otros elementos accesorios como tubos de nivelación, apoyos intermedios, escaleras y placas de base regulables, proporcionan grandes posibilidades de empleo y un total aprovechamiento. La unión o enlace de los tubos se asegura por medio de manguitos y acoplamientos roscados.
El montaje y desmontaje puede realizarse con gran rapidez y absoluta seguridad. La ejecución de estas construcciones requiere cierta experiencia a fin de componer los siguientes planos de montaje.
Andamios horizontales:
Andamios de una plataforma, carentes de montantes, con las que se persigue la protección de una parte del piso o la repartición de cargas.
Los diferentes andamios pueden instalarse sobre caballetes de madera o metálicos, y los andamios interiores montados sobre travesaños de madera y sostenidos por dos pilares, aunque siempre que sea posible, deben emplearse caballetes de altura graduable mediante cremallera.
Andamios verticales: Formados por dos o más planchas superpuestas, se utilizan para la construcción de muros y revoques de fachadas. Cualquiera sea el tipo de andamio vertical adoptado, es recomendable: La separación entre los montantes no superior a 5 m., los puentes de unión entre sí no excederán en 1,80 m. de altura.
Los empalmes de elementos verticales no deben coincidir en un mismo nivel.
La disposición de riostra s y atados será la suficiente para garantizar la inmovilidad de la unión o cualquier movimiento de los elementos que sujete.
Andamios colgados: Es necesario instalar andamios de este tipo cuando es imposible apoyarse en el suelo, o sea, si el muro está sobre un curso de agua o sobre una zona de circulación que no puede ser cerrada, y cuando es necesario realizar trabajo a cierta altura y evitar así la instalación de un andamiaje vertical que no se utilizará en gran parte.
Su instalación requiere gran cuidado; para los andamios colgados se deben utilizar siempre maderas enteras, exentas de nudos, las uniones de las piezas deben ser rigurosamente examinadas.
Como precauciones hay que evitar las sobrecargas, vigilar las piezas de madera, las uniones y los apoyos, e impedir los deslizamientos.
Andamios volantes o puentes:
Se utilizan para trabajos en alturas variables y que no requieran la instalación de un andamiaje completo. Suelen estar constituidos por una plancha que descansa sobre dos estribos suspendidos por medio de cables. La altura del andamio, o sea, la longitud del cable, se regula por medio de poleas. Los cables van unidos a liras que soportan la plataforma colgante de trabajo, y los obreros que están sobre ella son los encargados de regular la altura.
Es frecuente el uso de los andamios metálicos en hierro, que se ofrecen en alquiler, bien sea colgantes como terrestres; también es frecuente la realización en obra de andamios en madera.
Los andamios terrestres de alquiler metálicos que se ofrecen en el mercado tienen como característica inicial, el hecho de ser modulados, estandarizados y compuestos por pares de para les y cruceta s que unidos conforman un cuerpo de andamio.
Los andamios son estructuras o armazones de carácter temporal elaborados en hierro, madera, aluminio, etc; compuestos por varias piezas que unidas forman el andamio que se emplea en las diferentes intervenciones de cualquier inmueble.
Existen varios tipos de andamios:
Todo cuerpo de andamio, es una estructura tridimensional cuadrada, que para contar con una superficie horizontal superior sólida, sobre la cual trabajar, es necesario agregar un emparrillado metálico o bien varias teleras de madera, bien sea en un solo cuerpo de andamio, o bien dos cuerpos
independientes unidos de igual forma; todo dependerá de la necesidad del momento.
Para alcanzar cualquier altura con este tipo de andamios, se emplea la unión vertical de varios cuerpos; dicha unión se realiza a través de tantos para les como sean necesarios para alcanzar la altura requerida.
Para la circulación vertical del andamio, cuando este cuenta con varios cuerpos unidos, se utiliza "UNICAMENTE" la escalera metálica que forma parte estructural de los parales; es importante tener en cuenta este punto por ser una estructura del par al diseñada para tal fin.
Pasos para la instalación de un anadamio metálico terreste
Para instalar uno o varios cuerpos de andamio, es recomendable seguir los siguientes pasos:
Verificación del buen estado de los componentes del andamio:
De los Parales: Todo paral es la unión estructural de varios tubos metálicos, que en las partes superiores presenta dos pines (Elementos metálicos internos que sobresalen y presentan algún tipo de movimiento) uno a cada lado del paral, por donde se realizará la posterior unión vertical de cuerpos de andamio, estos pines incrustarán en las patas huecas de los demás parales.
Además, en los puntos medios de las patas superiores e inferiores, pero unidos de forma horizontal, sobresalen pines pequeños, con un hueco en el extremo de los mismos, que servirán de unión entre los parales y las crucetas.
Es necesario entonces tener en cuenta lo siguiente:
Se debe tener en cuenta que la importancia de la escalera de cada paral radica no solo en su función como elemento estructural del mismo, sino también en el hecho de ser la UNICA circulación vertical con que cuenta el andamio, brindando seguridad en el momento de subir o bajar del mismo.
Verificación de la estabilidad del suelo sobre la cual se apoya el andamio:
Es importante tener en cuenta que el andamio resistirá no solo el peso de las personas que en él se encuentre, sino que también resistirá el peso de materiales que dichos trabajadores estén utilizando, el peso de algunas herramientas, mas el peso y la presión de las diferentes fuerzas que sobre él ejecuten no solo los obreros sino también el medio ambiente.
Es necesario que se tenga en cuenta que si el andamio ha de apoyarse sobre un terreno en tierra, arena, o algún otro material que debido al peso pueda traer problemas de estabilidad; debe entonces elaborarse una base firme, como una estiba, que le sirva de base firme y segura.
Nivelación de la base de apoyo del andamio: En muchas ocasiones no se cuenta con superficies horizontales donde apoyar correctamente el andamio. Es necesario tener presente que el andamio terrestre, necesita una superficie nivelada horizontal que debe garantizar la estabilidad debido
a las diferentes cargas y presiones que se ejercen en el.
El andamio es una estructura que tiene permanentemente diversas cargas vivas que deben ser transmitidas hasta el suelo de forma segura.
Armado del cuyerpo o los cuerpos de andamio:
Cada vez que se ejecute el armado de un andamio, se partirá de la premisa que si sobra algún elemento, el andamio no está quedando seguro; y si falta algún elemento tampoco está quedando seguro. Esta premisa se debe a que una vez llega el equipo de andamios a armar, se verifica primero que estén todas las partes que lo componen para poder recibir el pedido de alquiler; si esto es así entonces no es posible ni que falten ni que sobren elementos.
Es importante hacer esta aclaración pues en muchas ocasiones por errores menores, queda faltando algún elemento, y en obra deciden remplazarlo de manera anómala, esto puede incidir de forma negativa.
La arquitectura colombiana, como muchas otras arquitecturas mundiales; a tenido a través del tiempo, diferentes épocas y períodos que han marcado e influenciado Y en muchas ocasiones se identifica y destaca por los elementos decorativos característicos.
Muchos de estos elementos, debido al transcurrir del tiempo, al abandono parcial o total, a la falta de mantenimiento, vandalismo, movimientos telúricos o simplemente algunos leves movimientos de tierra por Colombia estar localizada en una zona de alto riesgo sísmico; presentan deterioro o han colapsado.
En los inmuebles de valor patrimonial en los que se trabaje, se debe tener especial cuidado en la recuperación de dichos elementos.
Es necesario entonces iniciar la recuperación de los elementos que, producto de derrumbes, demoliciones. desmontes incontrolados o abandono general, se encuentren diseminados por la obra o su entorno.
Para la correcta manipulación y almacenamiento de estos elementos seguiremos los siguientes pasos, con miras a que estén en las mejores condiciones en el momento que se decida realizar su recuperación, siempre bajo la supervisión permanente de el profesional arquitecto restaurador encargado de la obra de Conservación del inmueble:
Elaboración de un bosquejo detallado con medidas reales del elemento o decorado.
Toma de fotografías del elemento: Documentación del elemento mediante ficha que contenga: Localización dentro del inmueble, materiales constructivos, clasificación del elemento o decorado (Sobrepuesto, si forma parte de la materia integral del muro, o es un elemento aislado e independiente), estado del elemento, principales causas de deterioro, posibilidades de intervención.
Clasificar el elemento o decorado: Precisar la intervención inmediata a realizar con miras a su protección se definirá si el elemento se conserva en su sitio, se enhuacala para evitar daños mayores debido al desarrollo de las obras, se realiza alguna de las obras de protección vistas en capítulos anteriores, etc. Si la pieza se ha de desmontar, esta debe clasificarse cuidadosamente, pues debe quedar
perfectamente identificada su ubicación original, el empaque o enhuacalado que tendrá de acuerdo a su forma, tamaño, y que la clasificación incluya el sitio donde esta pieza quedará guardada mientras se logra su recuperación y/o se desarrolla parte de la obra.
Tanto para las piezas que queden en su sitio como para las que deben desmontarse, se realiza un informe con a protección propuesta o el desmonte provisional de aquellos elementos significativos que por su estado actual de deterioro o por su constante exposición a factores deteriorantes así lo requieran. Igualmente, se incluirán todos aquellos elementos que se encuentren expuestos a acciones vandálicas incontrolables o imprevisibles.
Se definirán las características generales de cada una de las protecciones propuestas y de considerarse necesario, se acompaña de croquis explicativos de las soluciones.
El desmonte de cualquier elemento significativo de una construcción se considerará una medida extrema y solamente se propondrá en aquellos casos donde su protección "in situ" resulta imposible, o donde por razones de seguridad sea necesario trasladar y almacenar la pieza. En todos estos casos se documenta debidamente el proceso y
se clasifica correctamente el elemento, acompañándose de las condiciones requeridas para su almacenamiento.
Los elementos significativos o decorados a tener en cuenta, para su protección, recuperación o desmonte en este capítulo son los siguientes:
Anteriormente se describió que todo elemento decorativo o significativo debe protegerse o desmontarse según el caso y la urgencia de dicha actividad.

Es recomendable estudiar del Módulo de Consolidación de la Estructura, la cartilla de "Preparación de superficies y aplicación de acabados, construcción y reparación de detalles arquitectónicos ", en su capítulo dedicado a " Decorados, ornamentos y detalles arquitectónicos".
Son las medidas tendientes a la protección del elemento o decorado en el lugar donde se encuentra.
Dentro de esta serie de medidas se encuentran adscritas las obras de preservación enumeradas en capítulos anteriores.
Si el elemento es un decorado en alto relieve, debe conocerse exactamente sus dimensiones, cuanto sobresale, cual es el material constructivo y cual es el tipo de decorado; cuales son sus principales deterioros.
Se limpia, protege, desinfecta, desinsecta el elemento para evitar que continúe su deterioro.
Se le aplica según el caso, el material constructivo y su estado actual; las medidas y productos necesarios para su preservación en obra, vistas en el capítulo citado.
Para enhuacalados:
Para desmonte de elementos:
Se estudia y propone, la demolición parcial o total de aquellas estructuras o elementos aislados que inciden directamente en la conservación del edificio, acelerando su deterioro. Estas pueden ser:
Cuando las demoliciones planteadas afectan áreas o elementos significativos de la construcción se toma las medidas pertinentes para documentar exhaustivamente las mismas.
La restauración y la demolición debe y tiene que ser un proceso controlado con el fin de evitar la pérdida irreparable de cualquier elemento significativo del inmueble.
Consisten en el retiro de elementos agregados en el transcurso del tiempo que, de una forma u otra, altera el aspecto formal, estructural o funcional del inmueble.
Estas obras están respaldadas por un proyecto de rehabilitación y adecuación, además de un análisis de las afecciones estructurales que puedan traer consigo los retiros.
Retiro de agregados:
Previo análisis de la función estructural que desempeñen los elementos, deberán retirarse, primero, aquellos elementos que afecten la funcionalidad y forma de los espacios originales para, posteriormente, hacerlo con aquellos que tengan alguna función de carga. que requieran de trabajos previos a su retiro.
De muros divisorios:
Se retirarán los muros divisorios adicionados con diversos materiales a base de cincel y maceta, con golpes rasantes para evitar percusiones que puedan dañar los elementos aledaños. En el caso de ser éstos de madera, lámina u otro material desmontable, deben tomarse las precauciones necesarias a fin de afectar los elementos a los que se encuentren sujetos por medio de empotres o amarres.
De entrepisos o techumbres:
En caso de encontrar losas de concreto armado a eliminar se procede a apuntalar y realizar cortes de las mismas para su liberación, evitando el golpeteo sobre ellas con perforadas neumáticas, roto martillos, etc, debido a que la vibración puede incidir en la estabilidad de la estructura, recubrimientos y ornamentación del inmueble.En el caso de ser estructuras de madera o metal, éstas se desmotaran cuidando de no afectar la estructura o recubrimientos en apoyos o empotres.
De rellenos (en entrepisos y cubiertas):
Se libera el acabado superior introduciendo un cincel fino por las jumas golpeando suavemente, a fin de retirar el recubrimiento sin provocar percusiones. una vez terminada la tarea, se colocan puentes de madera, perpendiculares al sentido de las vigas, y se inicia el desalojo del relleno a base de pala sin punta (chata), hincada de forma rasante (paralelamente al suelo); una vez retirado la mayoría del material, se continua con cuchara para evitar dañar el soporte de éste. previa limpieza del área con brocha, se desinfecta y protege la madera en su lugar, restituyendo las piezas muy dañadas, o se retira totalmente si los daños son mayores (desintegración de la madera por parásitos, humedad o ruptura; en metales, por corrosión).
Retiro de instalaciones (eléctricas, hidráulicas y sanitarias):
Con base en el proyecto de adecuación, se procede a retirar todo tipo de instalaciones aparentes que deterioren física o visualmente la integridad del inmueble, almacenando aquellas que sean factibles de reutilizar.
Eliminación de revoques en mal estado:
Previa comprobación de la ausencia de pintura mural o decoración significativa, se retiran los revoques dañados, a base de cincel y maceta, dando golpes rasantes a fin de no afectar la estructura o las juntas de la misma, protegiendo previamente pisos y otros elementos adyacentes que pueden ser dañados durante el trabajo.
Liberación de puertas y ventanas:
Según proyecto de adecuación, se retiran las puertas, ventanas y herrerías no originales o aquellas originales (previo registro y numeración), que, por su grado de deterioro merite su retiro para restitución o restauración.
Para descubrir los anclajes, se perfora con broca en torno a ellos, evitando dañar, los apoyos o marcos en que se encuentren.
Retiros
De elementos estructurales:
Se establece la función que están cumpliendo, se determina la repercusión que pueda tener su eliminación en la estabilidad del edificio y la forma de sustituirlos por otros que, sin afectar la apariencia original, efectúen el trabajo estructural. La demolición se hace siguiendo el procedimiento y la herramienta que no provoque daños por percusión, caída del producto de la demolición o almacenamiento del desperdicio.
De muros divisorios:
Se sigue un criterio análogo al señalado para elementos estructurales.
De bastidores de puertas y ventanas:
Se retiran los bastidores, marcos y contramarcos con la herramienta adecuada y en forma tal que no causen daños en revoques, cielos o pavimentos.
Murciélagos: Se ahuyentan con humo y ruido; posteriormente se cierra, con un bastidor formado por tela de gallinero de malla de 13 mm como máximo, todo vano u orificio por donde puedan penetrar.
Cuando se presenten invasiones en los corredores podrá emplearse colocando la tela en forma de techo al nivel de las vigas del patio correspondiente.
Ratas y ratones: Se emplean raticidas y se obstruyen las bocas de túneles o madrigueras por medio de trozos de carbón de encino retacados con mezcla formada por 1 parte de ceniza de carbón y 1 de cal, sellando la superficie con mortero de cemento y arena, se recomienda en proporción de 1.5.
Palomas: Deben exterminarse con productos que no les causen trastornos en el sistema nervioso.
No deben suministrarse alimentos envenenados por representar un peligro posterior para el hombre.
Polilla y otros insectos: Se usan insecticidas y una vez realizada esta labor, se impregna la madera con pentaclorofenol, como se indica en las especificaciones correspondientes a obras de preservación.
De vegetales parásitos:
Hierba: Se extrae a mano, procurando retirarla de raíz; posteriormente se lava la zona con solución de agua y jabón neutro o jabón rey. Posteriormente se lava y limpia con abundante agua Terminada la limpieza, se consolida la superficie de acuerdo con el material y la especificación correspondiente.
Arbustos: Se hace el desmonte a mano. Para extraer las raíces se retiran las piedras que forman la mampostería, siguiendo toda su trayectoria. Posteriormente se restituye la mampostería. Cuando las raíces se encuentran incrustadas en bóvedas, se estudia su trayectoria, observando con especial cuidado si es superficial o profunda, para determinar el peligro existente en la estabilidad una vez extra ida.
Musgos y líquenes:Se humedece la superficie con solución de agua y ácido sulfúrico al 5%, y se repite la operación hasta la total destrucción de la planta. Después se lava la superficie con agua pura. Finalizada la limpieza se consolida el muro o bóveda de acuerdo con su material y la especificación correspondiente. Posteriormente se aplica sellador de jabón de alúmina.
Hongos y líquenes: Se debe investigar exhaustiva mente cuál es la causa· de su aparición para eliminarlos. Las causas podrán ser:
De revoques:Los revoques se retiran por golpe rasante dado con cuchara; en los puntos donde se presente mayor adherencia, se completa el retiro con martillo dando golpes rasantes. Sí hay que afinar, se hace con cincel detallando suavemente.
De recubrimientos pétreos: Los recubrimientos de tipo pétreo que deben retirarse, se aflojan introduciendo por los cantos de la placa cincel fino, se golpea suavemente con martillo de golpe, a fin de eliminar el recubrimiento sin provocar percusión; no se permitirá el golpe de frente, ni el uso de cuñas, marros o macetas, rotomartillos o herramienta neumática. En algunos casos se podrá usar sierra de disco. Una vez retirado el recubrimiento, se elimina la mezcla como si fuera revoque.
De recubrimientos de madera: Se usa el martillo de uña para retirar los clavos y el destornillador para quitar tornillos; no se deben dar golpes que produzcan percusión.
De rellenos: Se retira el acabado superior conforme al criterio indicado para la eliminación de recubrimientos pétreos o de madera. Una vez eliminado el acabado se retiran los rellenos empleando cuchara, depositando el material en canastos; cuando los rellenos tienen más de 30 cm de espesor, se puede usar pala introducida en forma rasante y sin golpear, posteriormente se proseguirá con cuchara. Los obreros no deben trabajar parados sobre el relleno, deben hacerlo sobre puentes que no apoyen sobre el entrepiso.
Las demoliciones son obras encaminadas a ejecutar el trabajo de deshacer una construcción o parte de ella. Se determinarán dos tipos de demoliciones dentro de la descripción anteriormente expuesta: Las demoliciones parciales y las demoliciones totales.
Demoliciones parciales:
Son las demoliciones que derriban parte de una edificación, por razones de reformas, ampliaciones, acondicionamientos, rehabilitaciones, etc; manteniendo intacto el resto del edificio, que no se interviene o cambia. Para lograrla es preciso conservar y proteger de manera especial la parte de la edificación que se mantiene, para no deteriorarla.
Demoliciones totales:
Estas demoliciones consisten en desaparecer por completo la edificación existente, quedando aprovechable solo el terreno.
Aspectos a tener en cuanta en una demolición:
Antes de proceder a una demolición, se realiza una serie de trabajos previos encaminados a brindar seguridad, al personal que labora en la demolición del inmueble para todos los casos en los que exista alto riesgo en la ejecución de la demolición. Esta nueva- perspectiva obliga a establecer los criterios puntuales que se citan a continuación.
Inspección previa de la edificación a demoler:
Se intenta conocer: la antigüedad del edificio y las técnicas con las que fue construido, las características de la estructura inicial (tipo de material utilizado),
las posibles variaciones sufridas a causa de reformas, el estado actual que presentan los elementos estructurales y sus posibles patologías, la conservación de las instalaciones existentes y por último el entorno del mismo, edificios medianeros, estado, vías de acceso, etc.
Redacción del proyecto de demolición:
En estos proyectos se tienen en cuenta los sistemas de demolición a utilizar, las fases en que se va a demoler el edificio y las medidas a disponer para la prevención de accidentes y seguridad del personal de la obra y terceros, redactando todos los puntos a tener en cuenta.
Orden de ejecución de las distintas fases:
El orden de los trabajos a efectuar será el inverso al de la ejecución lógica de construcción de un edificio, salvo en el caso en que la inspección previa determine criterios diferentes.El orden de los trabajos a realizar en cualquier edificación serán los siguientes.
Primera fase: Preliminares
Desinfectar alrededor el edificio: Se realiza en las zonas que sea necesario, circunstancias que se pueden presentar e!1localescon productos tóxicos, químicos, etc. Deberán también desinfectarse los edificios que hayan albergado hospitales o clínicas.
Anular las instalaciones existentes: La demolición se inicia cuando, las compañías suministradoras de los diversos servicios hayan eliminado las acometidas correspondientes de agua, electricidad, gas, etc.
Apeas y apuntalamientos necesarios:
Antes de proceder a las demoliciones, se debe asegurar, mediante los apeos necesarios, todos aquellos elementos del edificio que pueden ocasionar derrumbamientos en la obra. Se realizan siempre de abajo hacia arriba. Se apea una edificación siempre que se observe anomalías apreciables en los elementos
estructurales, como cuando pueda existir sobrecarga en los diversos elementos estructurales del edificio; y, por último, siempre que exista la posibilidad de un colapso no controlado del edificio o de los muros medianeros.
Según lo que se quiera proteger el mercado ofrece diferentes tipos de apeos: para huecos en muros, apeos de elementos estructurales horizontales, apuntalamiento de muros verticales o medianeros.
Segunda fase: Medios auxiliares
Instalación de andamios:Representan un medio de trabajo como plataforma en diferentes alturas, y ofrecen la posibilidad de sostener los sistemas de protección, tanto del personal de la obra como de terceros.
Instalación de medios de protección: Trabajo previo a la demolición, quedan instalados antes del inicio de cualquier fase de trabajo. Estos pueden ser:
Instalación de medios de evacuación de escombros: Se debe analizar la colocación más estratégica y la dimensión de los medios de evacuación. Se procura no sobrecargar los elementos estructurales con los escombros. La evacuación se podrá efectuar a través de canaletas o conductos verticales, instalando, en la parte inferior, tolvas para recoger escombros.
También es factible realizar ductos exteriores de canalización de escombros, en madera, teniendo en cuenta que estos queden perfectamente sellados y evitando que el producto de los escombros y basuras que circulen, se salgan del canal.
El ducto, debe tener acceso a cada nivel del inmueble a intervenir, para que desde cada piso se pueda verter los escombros que se deseen retirar. En la parte inferior del ducto, se procura que quede rematado por algún tipo de lona o tela gruesa que impida el paso de pequeñas partículas que al caer a la tolva de recibo salgan dispersas de forma incontrolada y pueden ocasionar serios daños.
Trabajos de demolición: Se procede siguiendo las instrucciones que marque el proyecto correspondiente, manteniendo de forma estricta cada una de las fases y las recomendaciones que de ellas pudieran existir.
Tercera fase: Formas de efectuar las demoliciones
Se distinguen tres grandes grupos de sistemas a emplear para la demolición de un edificio en función de su situación y características.
Demolición elemento por elemento: Es el concepto de demoler las diferentes partes constructivas en orden inverso a como fueron ejecutadas. En general, se suelen realizar con medios manuales o poco mecanizados.
Demolición por colapso: Es el concepto de demoler, de manera más o menos global, todos los elementos constructivos que constituyen el edificio. En este caso se pueden distinguir tres sistemas:
Demolición combinada, Cuando se emplean los 2 sistemas mencionados anteriormente de elemento por elemento o por colapso. En este caso, deben especificarse claramente las zonas que se demolerán por un sistema o por otro.
Cuarta fase: Desarrollo de la ejecución de la demolición
Todo edificio consta de gran variedad de elementos constructivos, donde cada uno de ellos comporta acciones diferentes a la hora de demolerlos. En este apartado se describen las diferentes formas sobre cómo proceder a la demolición de los elementos constructivos más elementales de un edificio.
Demolición de cubiertas inclinadas:Indiferente del tipo de cubierta a demoler, siempre se comienza desde la cumbrera hacia los aleros, de forma simétrica en todos los faldones, evitándose las sobrecargas descompensadas que pueden provocar hundimientos imprevistos, Las chimeneas existentes se demolerán una vez desmantelado el material de cobertura o piel (tejas, pizarras, etc), antes de proseguir con el de las capas de soporte.
Los aleros y cornisas sobresalientes suelen estar contrapesados por la propia cubierta, por lo que se debe apear antes de desmantelarlos. Es aconsejable no realizar estos trabajos en tiempo de lluvia, por el peligro que se genera.
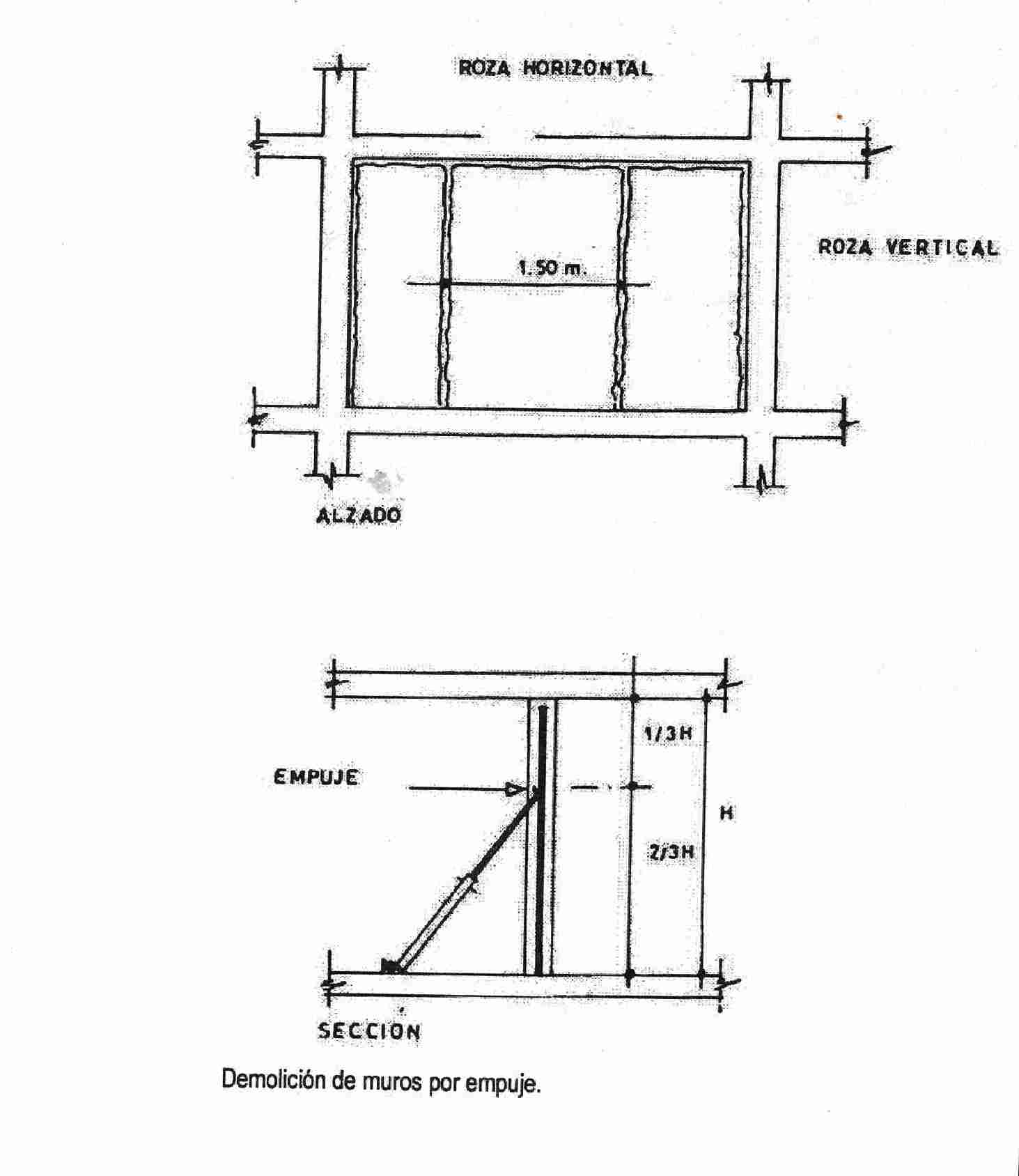
Demolición de tabiques: Se cortan los paramentos mediante rozas verticales de arriba hacia abajo y se procede al vuelco mediante el empuje del paramento, establecido que el punto de empuje se encuentre por encima del centro de/gravedad del elemento para que su caída se produzca siempre hacia el lado contrario.
Demolición de muros de Cerramiento: Debe efectuarse de piso a piso y siempre de arriba hacia abajo. Se puede realizar la demolición del muro de las siguientes maneras:
Demolición de entrepisos y estructuras: En general se realiza la demolición, planta a planta. Si la estructura es de madera, se dejan las cabezas de las viguetas, por si están en mal estado, sobre todo en zonas próximas a humedades o chimeneas. Se procede al desmontaje del entrepiso, comenzando por el material de relleno (si lo tiene) y terminando por la extracción de las viguetas. Para desmantelar éstas, primero se apean y luego se cortan por los extremos. Por lo general, en primer lugar se eliminan los voladizos en el caso de que existan. Estos procesos son los más adecuados, siempre que la extracción de la viga implique un riesgo de movimientos en los muros soporte.
En casos donde las viguetas del entrepiso a demoler son de acero, deberán cortarse las cabezas con la misma precaución que en el caso anterior. Si la vigueta es continua para dos crujías, antes del corte se procede al apeo de, vano que no se corta.
Las losas armadas en una sola dirección se eliminarán cortando en franjas paralelas a la armadura principal, y si el armado es en dos direcciones, se eliminan haciendo cortes por recuadros.
En el caso de las jácenas de hormigón, primero se descubren las armaduras de la pieza en sus extremos, y seguidamente, se cortarán las armaduras que han quedado a la vista.
Demolición de pilares: Previo a la demolición de un pilar, se procede a la eliminación de la carga que gravita sobre él. Se descubren las armaduras de la base del pilar, se corta la de una de las caras y, por empuje o tracción, se tumbará al suelo, cortando finalmente la armadura del otro extremo. Si el pilar es de madera o de acero, se cortará la base y se procederá siguiendo el mismo sistema.
Demolición de escaleras: Se desmonta el material de los peldaños y rellenos, luego se apean las bóvedas y, finalmente, se inician los cortes de las mismas. Si los peldaños son volados, no se desmantelan los elementos del muro donde se empotran para evitar desprendimientos.
Si la escalera está formada por losa de hormigón, se procede a su apeo, se descubren las armaduras de los extremos de la misma y se cortarán.
La limpieza, tiene por finalidad señalar y ejecutar las áreas generales o locales independientes que deben se limpiadas de escombros y acumulaciones de basura, así como las medidas a adoptar para evitar que esta situación se siga repitiendo.
Otro objetivo es eliminar o erradicar los deterioros y agentes que lo producen, protegiendo los espacios, áreas o elementos que componen el inmueble. La forma de tratamiento dependerá de los daños y causas que los producen. (Ver cartilla de "Preparación de superficies y aplicación de acabados, construcción y reparación de detalles arquitectónicos "del módulo de consolidación de la estructura).
Se comienza por la limpieza de los diferentes elementos que constituyen el inmueble, usando para ello cepillos suaves, paños, etc. Posteriormente debe limpiarse todo el inmueble de los diferentes escombros y basuras que se encuentren en el inmueble, usando costales o recurriendo a botar los escombros por medio de buitrón exterior como se explicó en el capítulo anterior.
Una vez desocupado el inmueble de los escombros se procede a barrer todo el inmueble, trapearlo y aplicar en todo el inmueble algún tipo de desinfectante.
Es importante ampliar este punto, pues en muchas ocasiones, se intervienen inmuebles cuyas funciones han sido en algún momento hospitales, clínicas, cárceles, batallones, etc; o edificios que por años han estado abandonados y estuvieron ocupados; debido a este abandono es recomendable tratar de eliminar todo tipo de infecciones que por años han estado presentes en el inmueble. Además porque la intención es poder trabajar y conservar el inmueble. Una vez realizada esta primera etapa se procede a realizar todo tipo de obras que sean necesarias en el inmueble, puede ser demoliciones, apuntalamientos, etc.
Es necesario anotar que la limpieza de la obra es vital para el normal desarrollo de cualquier tipo de intervención; por tanto, cada día de la obra y una vez terminada la jornada laboral, debe limpiarse todo tipo de basura o escombro que se haya generado, pues de lo contrario se generan retrasos a corto plazo, mal aspecto de la obra, posibles focos de infección y
puntos de accidentes laborales producto de caídas, puntillas oxidadas, polvo en los ojos, etc.
Como se mencionó anteriormente, es recomendable ver cartilla de "Preparación de superficies y aplicación de acabados, construcción y reparación de detalles arquitectónicos ", en su capítulo de limpieza; del módulo de consolidación de la estructura.
Sin embargo se anota a continuación algunas medidas generales a tener en cuenta:
Se han enunciado hasta el momento, las diferentes obras a realizar para lograr el objetivo final de conservación y/o restauración de inmuebles. Toda obra necesita ciertos espacios, que son de especial importancia porque permiten el perfecto funcionamiento de la conservación y recuperación del inmueble.
Se requiere la realización de ciertas construcciones temporales, o adecuación de espacios en el inmueble; necesarios para garantizar los requerimientos básicos de ejecución de las posteriores etapas de trabajo. Estos espacios podrán obtenerse directamente a través de la adaptación de locales existentes en el edificio o mediante la construcción de casetas provisionales en los espacios adecuados según el análisis del inmueble. En estas obras se incluyen todas las que sean necesarias para garantizar las mínimas comodidades y garantizar la prestación de los servicios básicos necesarios para el normal funcionamiento de la obra.
Los espacios mínimos necesarios a garantizar en el posterior desarrollo de la obra de conservación, son:
Localización del almacén de equipos y herramientas.
Localización de espacio para bodega de materiales.
Localización de espacio para oficina de obra, interventoría y espacio de responsables de obra.
Revisión, replanteo y provisión de instalaciones hidráulicas y sanitarias; Taquillas y baños para los obreros, lavado de herramienta.
Revisión, replanteo y provisión de instalaciones eléctricas y telefónicas.
Sistemas y/o mecanismos de reserva temporal.
Anclajes de instalaciones técnicas de la edificación.
Almacén para los objetos y materiales de valor recuperados o desmontados durante el proceso de ejecución de obras.
Escaleras provisionales para garantizar el acceso a todos los niveles de la construcción.
Adecuación de espacio para material de río, cantera, arena, ladrillo, bloque, etc.
Adecuación de espacio para la localización de testigos de resistencia de materiales.
Adecuación de espacio para carpintería y equipo de figuración.
Las obras necesitan como condición principal, la provisión de agua para realizar gran parte de las tareas propias de la obra, también garantizar la comodidad necesaria a las diferentes personas que intervengan de una u otra manera en la ejecución y conservación del inmueble.
Para iniciar labores en un inmueble que se va a intervenir y recuperar es necesario evaluar el estado real de las instalaciones hidráulicas y sanitarias; como se encuentra el sistema del edificio de en provisión de agua limpia y el sistema de evacuación de aguas negras. Generalmente se encuentra que el inmueble cuenta con la red de agua limpia y la red de evacuación o sanitaria instaladas.
Lo primero que se debe realizar en estos casos es verificar que cada tramo, cada elemento; tanto de la red hidráulica como sanitaria se encuentre en óptimas condiciones; verificar que no contenga obstrucciones internas, fugas de agua tanto limpia como sanitaria, verificar la adecuada distribución de las tuberías a través de todo el inmueble y verificar las presiones.
Si se encuentra algún problema en alguno de los aspectos antes mencionados, se debe corregir y garantizar el perfecto funcionamiento.Es necesario también verificar que la unión desde la parte exterior del inmueble con la parte interior, ósea, la unión de la red pública con la red privada esté en perfecto funcionamiento, si no es así debe corregirse y realizarla.
Algunos inmuebles no cuentan con el suministro de agua, bien sea por la cancelación del mismo debido al estado de abandono, como por tener la red interna, algún o algunos problemas para garantizar el perfecto suministro del mismo.
Se revisa todo el inmueble en mención y realiza un cuidadoso inventario de las instalaciones existentes tanto hidráulicas como sanitarias, el estado de las mismas, el estado de los materiales que las componen, de las tuberías, registros, etc; anotar la existencia contadores o no; dicho informe debe contener las principales falencias de las redes y sus posibilidades de intervención, así como el material necesario para garantizar el suministro tanto hidráulico como sanitario.
Verificar que el inmueble cuente con los aparatos y espacios necesarios mínimos dentro del inmueble, se deben realizar o adecuar, teniendo como criterio para su localización, del inventario antes mencionado y su mejor y óptima ubicación. Se tiene en cuenta que si existe el espacio pero no se cuenta con los aparatos sanitarios, se proveerán según los trabajos necesarios a realizar en las respectivas redes; si no existe el espacio, se puede edificar en cualquiera de los materiales que al inicio del capítulo se mencionan.
Para edificar o adecuar un nuevo espacio, primero se debe pasar por la reunión de obra donde se definirá el sitio más adecuado según criterios anteriores, yel informe preliminar; ya que no todos los espacios podrán ser aptos para adecuarse o permitir su ubicación, debido a las características particulares de cada uno.
Se debe evitar: usar muros existentes si se tiene sospechas de pinturas especiales que puedan estar debajo de la actual; en etapas más avanzadas de conservación del inmueble se requerirán calas de color y de búsqueda de pintura mural. Se recomienda que tanto las redes de distribución de aguas, como la instalación de aparatos sanitarios sean de fácil monte y desmonte.
Por último, el inventario de aguas identifica elementos particulares sanitarios e hidráulicos que actualmente posee el inmueble que repercute en el proyecto de conservación o restauración del inmueble tales como: Tanques subterráneos, pozos sépticos, cámaras, espacios especiales, enterrados o sobre elevados, etc.
Debido a que el maestro de obra tiene relación directa con la ejecución de las instalaciones sanitarias e hidráulicas, a continuación se enumeran algunos criterios a tener presentes en la ejecución de este tipo de trabajos.
La exigencia de una red de evacuación es incuestionable para mantener los equilibrios higiénicos y de comodidad en la comunidad.
La importancia de este tipo de redes, pensadas para dar salida a las aguas sucias o inútiles, obliga a conocer y entender cómo se estructuran, tanto a nivel público o privado. Toda red se diseñar con una serie de funciones primarias básicas pensadas para:
Redes de evacuación o sanitarias: Conformadas por dos subsistemas, el público y el privado.
Tipos de aguas de las redes de evacuación sanitaria: Pública y privada
Pluviales:Proceden de la escorrentía de las aguas de lluvia.
Urbanas: Aguas residuales que proceden exclusivamente de las viviendas.
Industriales: Aguas residuales que proceden de las industrias o empresas.
Mixtas: Aguas residuales formadas por la agrupación de los tipos anteriores, o que no hacen distinción en sus recogidas.
Redes públicas:
Se pueden identificar claramente varios elementos que sirven de apoyo a la red sanitaria pública tales como pozos de registro, aliviaderos, rápidos, fosas arenosas, fosas sépticas, etc; pero para la presente cartilla se ampliará el tema de los pozos de registro por ser un apoyo frecuente de encontrar en cualquier inmueble; los demás apoyos son iguales
de importantes, pero para ello se pueden remitir a la cartilla de instalaciones hidráulicas y sanitarias, donde se estudia todo el tema.
Son elementos importantes en el esquema de una red de alcantarillado, dado que permiten el control de las conducciones, su reparación, limpieza y el análisis de las aguas residuales.
Los pozos pueden ser prefabricados, generalmente circulares, con un diámetro aproximado de 1 m. y cono de reducción superior. La utilización de este tipo de prefabricados permite un ahorro considerable de tiempo de ejecución, pero obliga a detallar perfectamente la situación de los empalmes de conexión previstos y los de posibles ampliaciones. Si la construcción se hace al pie de obra, su sección suele ser cuadrada, con dimensiones aproximadas de 0,70 x 0,70 m.; se ejecutan con fábrica de ladrillo maciza de 15 cm. de espesor y base de hormigón mínimamente armada.
Las paredes se cubrirán con un revoque de mortero y enlucido para darles una perfecta impermeabilización.
Para conductos con caudales importantes, del orden de 2 a S m3/seg. Como en general sucede en las grandes ciudades, se utilizan construcciones in situ. El material más adecuado es el hormigón en masa o el armado, no recomendándose ni los de fábrica de ladrillo, por su poca durabilidad, ni los metálicos, por su alto riesgo de desgaste al rozamiento y corrosión.
Entre los elementos prefabricados son aconsejables los de gres, por su gran resistencia a las aguas industriales y a la corrosión, Los de hormigón, si se pretende una rapidez de ejecución y facilidad de empalme, están sometidos a posibles corrosiones, que pueden ser mitigadas con revestimientos de protección adecuados.
Los de amianto-cemento y hierro fundido son de fácil manejo y colocación, pero sufren corrosión por las aguas con contenidos ácidos, y deberán tenerse en cuenta las posibles conexiones con anterioridad los polivinilos poseen grandes ventajas, pero presentan problemas de corte, de conexiones y de unión con otras fábricas.
La excavación se hará con medios manuales o mecánicos, buscando la profundidad adecuada a la cota inferior del tubo más la solera de asiento, dado el caso. La anchura se da en función del diámetro del conducto, su profundidad y sistema de ejecución, dejando el espacio suficiente para su colocación o construcción, ampliándose esta del orden de 20 a 40 cm más en las zonas donde existan juntas de empalme.
Las paredes de las zanjas serán lo más verticales posibles; si el tipo de terreno no lo permite, se procede a dejar el talud natural de las tierras o a entibarlas, estudiando de antemano las repercusiones económicas y técnicas que comporta una u otra solución.
Si la naturaleza del terreno no permite la colocación directa del tubo, se procede o no a construir una capa de asiento de hormigón armado, en función de la importancia del colector, o a colocar una primera capa de arena debidamente compactada, para no permitir asientos diferenciales grandes.
Para que la instalación resulte higiénica e inodora, es precisa la distribución orgánica y racional, una construcción perfecta, así como el buen mantenimiento de los tubos.
La colocación de los distintos conductos, las acometidas con tubos principales, desviaciones, cruces, etc; se realizan de forma que sigan las pendientes y el sentido de la corriente, con curvas de radio no menor a 5 veces el de la alcantarilla, pendientes sobre el 3 %, velocidad de 3 m. /seg., e inclinaciones no superiores a los 30°, para no producir ninguna obstrucción.
El sellado de las juntas de unión de las distintas piezas de un conducto, son los puntos más delicados de cualquier red en cuanto a su puesta en obra. Si los conductos son de hormigón, se colocar juntas de retracción a distancias no mayores de 15 m.
La junta es de material resistente y no putrescible, como el neopreno o el cartón embreado. En todo momento de la ejecución, cuando ésta se interrumpa, se taponan los extremos que queden libres de los conductos. El relleno de la zanja se hace paulatinamente con la colocación de tubos, es decir, se rellenan, aunque sea de forma parcial, los tramos que no superen los 100 m, de tubería, para protegerla de golpes, variaciones de temperatura y posibles inundaciones de la zanja si no se ha previsto el oportuno drenaje de la misma.
En contacto con las tuberías, no se colocan gravas que superen los 2cm., hasta haber superado los primeros 30 cm. de la generatriz superior del tubo, siguiendo por turnos su relleno y apisonado sin llegar a dañar el conducto.
Es el punto de unión entre las redes de evacuación pluvial y privada. Se dispone de manera que las aguas de la alcantarilla no puedan penetrar en el edificio. Su pendiente no es inferior al 2 % o superior al 3 % y, para ello, si es necesario, se empalma con el pozo de registro, hasta llegar a la cota del colector. El empalme se hace mediante ángulo comprendido entre 90° y 45°.
Dentro de las redes privadas podríamos establecer que existe una red semipública, si definimos a ésta como el conjunto de tuberías e instalaciones auxiliares de evacuación que pertenecen a la comunidad de propietarios de un mismo edificio. Entre ellas se podrían citar los bajantes, los albañales, las arquetas, etcétera. La red privada, como tal, constaría del resto del entramado que conecta con la red semipública, ramales, derivaciones a los distintos aparatos sanitarios, sifones, etcétera. A una instalación de evacuación semipública y privada se le exige los mismos requisitos que a la pública.
El sistema de evacuación puede ser unitario, que recoge todo tipo de aguas por una sola red, o separativo, con dos redes independientes, una para aguas pluviales y otra exclusivamente para aguas residuales.Al calcular el diámetro de la tubería principal de descarga, se deja amplio margen de segundad, con diámetro superior al necesario, en previsión de futuras uniones. Las uniones de tubos con diámetros muy diferentes han de evitarse, ya que podrían producir depósitos de materias sólidas, que serían la causa de futuras obstrucciones.
Hay que evitar también las variaciones bruscas de las secciones, así como curvas estrechas, o bien uniones y soldaduras mal ejecutadas
Se recomienda que las superficies internas de los tubos sean lisas y que la disposición de éstos sea de tal forma que permita que la circulación de la corriente de aguas fluya con gran abundancia y velocidad.
Los aparatos sanitarios se situarán buscando la agrupación alrededor del bajante, quedando los inodoros y vertederos a una distancia de ésta no mayor almo.
El desagüe de inodoros y vertederos se hace siempre directo al bajante. El desagüe de fregaderos, lavaderos y aparatos de bombeo, se hace con cierre hidráulico individual (sifón). El resto de aparatos podrán emplear sifón individual o cierre hidráulico colectivo (bote sifónico).
La distancia del bote sifónico al bajante no es mayor de 1 m., y la separación del aparato sanitario más alejado al bote sifónico, no es mayor de 2 m. Se tendrán previstas arquetas en la red enterrada o registros en la suspendida, en los pies de bajantes, encuentros de albañales y en general, en todos los puntos en los que se puedan producir atascos.
Conducto de desagüe individual de cada uno de los aparatos sanitarios. La conducción entre registros o arquetas se realiza de tramos rectos y pendientes uniformes, todos los bajantes quedan ventilados por sus extremos superiores, mediante conductos de igual sección y abertura dispuesta en lugares adecuados. En edificios que superen las 8 plantas, se instala además columna de ventilación paralela al bajante. En los casos en que la red de evacuación, o parte de ella,
quede a nivel inferior al alcantarillado público, es necesaria la instalación de equipo de bombeo. Si en las aguas residuales se vierten contenidos de grasa o fangos, como pudiera ser en garajes, cocinas industriales o trituradoras de basuras, se interpone antes de la arqueta general o pozo de registro, un separador de grasas y fangos.
Codos, medio codos, reducciones, derivaciones, tapones, bujes, tees, yees, uniones, etc; de PVC. Para todas las particularidades de las piezas, empalmes, diámetros, espesores, se tendrán en cuenta las características y posibilidades de cada una de las múltiples empresas que fabrican y comercializan estos productos.
Previo a la colocación de tuberías, se debe comprobar las pendientes del trazado y la localización de los bajantes, replanteando los puntos por donde pasarán y abriendo los oportunos huecos de situación de las uniones, que impedirán que los tubos toquen los paramentos. Si éstos atraviesan muros o losas de reforzadas, se coloca un contra tubo de diámetro superior al previsto por la instalación, para permitir su posterior colocación.
Los bajantes se colocan, si es posible por distribución, totalmente verticales, sin cambios de dirección ni de sentido. La puesta en obra se ejecuta por la parte superior de la red, sosteniendo los tubos con soportes debajo de cada copa de los mismos y otra, aproximadamente a 1,5 m.
El pegante que se destine a la unión de piezas de p.v.c., jamás debe ser tan abundante que reduzca el interior útil del tubo. En la colocación de tubos hay que procurar que estén perfectamente alineados y, una vez encajados, se espera que el pegante seque.
En los tubos de P.V.C. existen juntas toricas de goma que facilitan la colocación a presión y a tope, para luego separarlos como mínimo medio centímetro, y permitir así su independencia. La junta o arandela de goma se imprime con productos deslizantes, para que admita el paso del elemento a unir.
Todas las tuberías en sentido horizontal se disponen con pendientes que van de 1% al 3 %, procurando la máxima pendiente y el mismo recorrido. El diámetro de la tubería general será mayor a los otros; el diámetro aumenta a medida que se acerca al punto de descarga, no sólo por el cúmulo de aguas que puede llegar a descargar, sino porque la resistencia también aumenta, debido al flujo de aire que ha aspirado en todo su recorrido. Nunca el diámetro será inferior a 4 pulgadas.
Es recomendable que las tuberías generales de descarga se coloquen al exterior, o bien en lugares de fácil acceso, que permitan la simple restitución en caso de avería. Se aconseja también la colocación de registros para proceder a la limpieza de los conductos.
Conducciones separadas: tienen la ventaja de absorber las variaciones de presión, pero por el contrario, la instalación es más costosa.
Conducciones colectivas: tienen la ventaja de una mayor compensación de carga por el coeficiente de simultaneidad, pero con el inconveniente del descenso de presión debido al consumo.
Caudal, presión y velocidad: El agua debe llegar a todos los puntos de consumo del edificio, pero en muchos casos no tiene la presión suficiente para tal cometido; así, los sistemas de distribución de la misma pueden ser variables.
Caudal regular suficiente: es el supuesto .que menos problemas plantea ya que cubre las necesidades de consumo del edificio; puede tener un sistema de contador colectivo o con contadores divisionarios para cada vivienda.
Caudal regular insuficiente: en este caso se tienen que prever unos depósitos acumuladores para almacenar el agua durante el tiempo de no consumo; los depósitos acumuladores se ubicarán en la parte alta del edificio si
constructivamente es viable y la presión es suficiente; otra solución es situarlos en las plantas bajas o sótanos de los edificios, donde se soluciona la cuestión constructiva pero se ha de colocar un grupo de presión para elevar el agua hasta los puntos de consumo.
Caudal irregular suficiente: en este supuesto es necesario un estudio de la cantidad de agua suministrada porque, en según qué ocasiones, se tendrá que recurrir a las restricciones o bien acumular el agua tal y como se ha descrito en el punto anterior.
Caudal irregular insuficiente: es el caso de mayor complejidad y peor solución, pues según la gravedad del caso se tendrán que buscar nuevas fuentes de suministro.
Presión: Se pueden plantear tres variables: suficiente, insuficiente y excesiva. El primer caso no ofrece ninguna particularidad, ya que aquélla llega a todos los puntos dentro de los parámetros correctos; en el supuesto de no tener la suficiente presión, hay que optar por un sistema de sobre elevación compuesto por depósito regulador, bomba elevadora, grupo hidroneumático regulador, llaves de paso de control y «by-pass».
El grupo de presión se compone de todos estos elementos regulados en primer lugar por medio del depósito; la bomba no puede absorber en vacío, en caso de corte de suministro, por medio de los testigos de máxima y mínima;
el grupo hidroneumático es un acumulador que regula el que la bomba no tenga que poner en funcionamiento cada vez que se requiera un caudal de agua.
Acometida: es el conducto que enlaza la instalación privada del edificio con la red general de distribución de la compañía.
Llave de toma: se encuentra colocada sobre la tubería de distribución de la red municipal y abre el paso a la acometida; está compuesta por un collar de toma fijado sobre el conducto general que se taladra, y, a través de la llave de paso, permite maniobrar en laacometida sin dejar fuera de servicio la tubería general.
Llave de registro: se sitúa sobre la acometida en la vía pública próxima al edificio; solamente puede acceder a ella la empresa suministradora de agua (compañía).
Llave de paso: es la conexión entre la acometida y el tubo de alimentación, y se encuentra situada en la parte inferior del edificio.
Todos los elementos descritos hasta el momento, tubo de acometida, llave de toma, llave de registro y llave de paso, son los que componen la acometida del edificio; a continuación se citarán los que forman la instalación interior general, cuyas partes más importantes son:
Tubo de alimentación: es el que enlaza la llave de paso del inmueble con los contadores (individual o batería); conviene que este tramo de tubería sea accesible para su reparación en caso necesario.
Columnas o montantes: es el tubo de salida de contador y que lo une con la instalación del abonado; generalmente transcurre por los patios de ventilación. Las columnas pueden ser ascendentes o descendentes, según el sistema de distribución, sirviendo a un máximo de 10 plantas; al pie de cada columna se coloca una llave de paso con grifo de vaciado, y al final de las mismas y cuando sea preciso, se intercala un antiarieté.
Distribuidor: es una tubería de recorrido horizontal que va desde el contador hasta el pie de los montantes; normalmente discurre por el techo de la planta baja hasta situarse en la base de los montantes, y en ellas se dispondrá de las válvulas anti-re-torno; cuando la instalación lleva los contadores centralizados se le denomina tubo de alimentación.
La instalación interior particular nace desde la llave de paso situada en el montante hasta el punto de consumo, y está formada por; Derivaciones: Son tuberías horizontales que, partiendo de las columnas, sirven de trayecto hasta los locales húmedos de la vivienda; con el objeto de evitar los retornos, es aconsejable que estas derivaciones circulen próximas al techo, (simplemente a un
nivel superior al de los aparatos sanitarios.
Ramales a los aparatos: Son las tuberías que, partiendo de las derivaciones, llevan el agua hasta los aparatos.
Para poder obtener un buen rendimiento, tanto a nivel de consumo como d mantenimiento, es necesario cumplir una serie de requisitos descritos continuación:
Materiales para la instalación:
En la instalación de una red de fontanería se distinguen dos grandes grupos de elementos que la forman: las conducciones y los dispositivos. En este apartado nos referiremos a las tuberías o conducciones, para lo cual es necesario conocer de antemano las peculiaridades de la instalación como: clase y naturaleza del agua, temperatura de consumo, valoración económica de la instalación y finalmente, diseño o funcionalidad, Es importante conocer la naturaleza química del agua por si sus componentes no son compatibles con los materiales que forman la instalación, teniendo en cuenta que el agua caliente acelera la corrosión de los materiales.
En general, las tuberías que transportan agua potable deberán estar formadas por materiales estables que no modifiquen las propiedades del agua, las tuberías de plomo con agua fría no ofrecen problemas, ya que se forma una
capa de sales calcáreas insolubles que las protegen contra la corrosión; pero con agua caliente éstas se disuelven en ella, pudiendo ser nocivas para el consumo humano, con el cobre, el oxígeno forma carbonato de cobre, que protege el tubo y permite su utilización para conducciones de agua potable.
Con el hierro, la acción del oxígeno disuelto en el agua provoca la corrosión acelerada por la presencia de ácido carbónico. Las sales férricas no son nocivas para el consumo humano, pero su problemática es la coloración rojiza que adopta el agua de consumo. Los materiales más empleados en las tuberías de agua son: acero, cobre, plomo y PVC.
Tuberías de PVC y plásticas:
Dentro de las denominadas tuberías plásticas, se deben distinguir dos categorías:
Válvulas: Junto con las tuberías, las válvulas son una de las partes más importantes de la red de fontanería porque tienen la propiedad de regular, interrumpir C' verter el agua de la conducción. Según su función las válvulas se clasifican en:
P. válvulas para servicio de interrupción y paso.
Q. válvulas de retención.
R. válvulas de controlo de maniobra.
S. válvulas de actuación automática.
Las válvulas para servicio de interrupción y paso regulan el funcionamiento de las instalaciones y permiten el paso del agua, debiendo estar provisto de un sistema de cierre no demasiado rápido para no provocar golpes peligrosos de ariete.
Mecanismos especiales de reserva temporal de aguas válvulas de asiento inclinado:
Es otro tipo de válvula en la que el asiento del pistoncillo está inclinado para que, en su paso, el agua no cambie tan bruscamente de dirección, con lo que se consigue una menor pérdida de carga en relación con las de asiento paralelo.
Los contadores son aparatos totalizadores y registradores de gasto. Su capacidad es variable y se suele elegir en consonancia con el consumo de la derivación considerada.
La necesidad de controlar el consumo del agua ha dado lugar a la utilización de los contadores, y la distribución por contador es el sistema más común.Los tipos de contadores son: de velocidad, de volumen y combinados. Consisten todos ellos en pequeños motores hidráulicos que funcionan a la inversa de las bombas y cuyo movimiento se utiliza para accionar una relojería que totaliza los consumos.
Los contadores de velocidad; se basan en el número de vueltas de una turbina, hélice o molinete. Los contadores volumétricos y de velocidad se diferencian en cuanto a su sensibilidad, que es mayor en los primeros que en los segundos.
Los contadores de volumen; presentan generalmente una cierta fragilidad de sus órganos, al estar expuestos al deterioro y al desgaste en contacto con aguas más o menos puras. Las partículas en suspensión producen agarrotamiento y un rápido desgaste en las piezas ajustadas con precisión, cabe destacar que, en pequeños consumos, los contadores de velocidad pueden, no llegar a registrar el paso del agua. Cuando se selecciona un contador hay que tener en cuenta el consumo máximo horario y la pérdida de carga propia del contador, que tiene que añadirse a la del circuito de la instalación para poder comprobar si la presión de entrada es la adecuada.
Los contadores combinados; están formados por la unión de los de volumen y los de velocidad, con las mismas ventajas de los anteriores. Una característica del principio de funcionamiento de los contadores volumétricos es que se basa en la anotación del número de veces que se llena un recipiente de una determinada capacidad, registrándose cada uno de los llenos mediante un mecanismo de relojería.
En una distribución bien diseñada, se parte de los ~s de velocidades y de caudal, los cuales dan lugar a una determinada'''' pérdida de carga por rozamiento para cada metro lineal de conducto; a ésta deben añadirse las causadas por grifería, accesorios y demás elementos intercalados en el circuito.Con el fin de vencer todas estas resistencias, el agua habrá de ser suministrada a una determinada presión, la cual no debe ser excesiva para no provocar una mayor velocidad del fluido, con sus correspondientes ruidos, e incluso podría llegar a provocar fisuras en los elementos de la instalación mecánicamente menos resistentes.
Si la presión es inferior a la necesaria, produce a su vez deficiencias en el servicio, tales como: mal funcionamiento de los aparatos (mezcladores, fluxómetros), déficit de caudal, falta de suministro en pisos altos, entre otros.
Con el objeto de evitar el exceso de presión y conseguir que sea constante en el suministro, se utilizan los llamados reductores, unos aparatos diseñados para provocar una caída de presión que permita la utilización del agua suministrada a una presión excesiva; la ventaja de estos elementos es que pueden ser regulados dentro de una determinada gama de presiones.
Los elevadores de presión se hacen necesarios, corrientemente, en los dos casos siguientes:
Se puede citar en el segundo caso, como problema tipo, el suministro a una vivienda unifamiliar que dispone de un pozo situado a un nivel inferior al de la salida de consumos. Una solución podría ser disponer de un depósito situado en la parte más alta de la vivienda, en el cual un dispositivo de boyas eléctricas o sondas a nivel de máxima y mínima capacidad, actúa sobre un interruptor, conectando una bomba (en general, del tipo sumergido) que eleva el agua hasta el depósito.
El mencionado sistema es eficaz siempre que la altura a la que se pueda situar el depósito sea la suficiente como para vencer las resistencias propias del circuito en el momento de máximo consumo, y cuando el agua tenga la presión necesaria en el primer servicio. Conviene utilizar bombas sumergidas en vez de las de superficie, ya que su aprovechamiento es el máximo en la elevación al situarse en el punto más bajo del pozo o manantial. Si, fuera de las horas punta del consumo, la presión de la distribución pública es suficiente para alimentar el depósito, éste se llenará en las horas menos cargadas; en el caso contrario, habrá que recurrir al empleo de un grupo motobomba de puesta en marcha y paro automáticos.
Básicamente, el funcionamiento de un grupo hidroneumático es el siguiente: una bomba aspira el agua de un pozo o depósito de equilibrio (el cual se va llenando con agua que proviene de la red y la impulsa dentro de un depósito metálico cilíndrico).
Al subir el agua, comprime el aire existente en la parte superior de la cámara a una presión prefijada, lo que permitirá fluir un determinado caudal de agua a esta presión al abrir cualquier grifo conectado a la red, que este, a su vez, en conexión con la cámara anteriormente citada.
Toda obra necesita como otra de sus condicionantes principales, la provisión de energía para realizar gran parte de las tareas propias de la obra, como para garantizar el funcionamiento de algunas herramientas necesarias en la ejecución y conservación del inmueble.
Para iniciar labores en un inmueble que se va a intervenir y recuperar es necesario evaluar el estado real de sus redes eléctricas; esto es, se debe evaluar como se encuentra el edificio en sus sistemas eléctricos de toma corrientes, de interruptores, de tomas polo a tierra, etc.
En algunos de los edificios se encuentra que el inmueble presenta buenas redes eléctricas, en perfecto funcionamiento y donde no es necesario realizar grandes adecuaciones. En estos casos se debe verificar que cada componente, tramo, cable, alambre red eléctrica, interruptor o toma; que todo el conjunto esté en óptimas condiciones; que no se encuentre averiado, desgastado o pelado, que no tenga uniones defectuosas o mal hechas, que los cables y alambres eléctricos no estén generando peligro por posible incendio, etc.
Si se encuentra algún problema debe corregirse y garantizar el perfecto funcionamiento.
Es necesario también verificar que la unión desde la acometida principal exterior del inmueble con la parte interior del mismo, esté en perfecto funcionamiento, si no es así debe corregirse y realizarse.
Cabe destacar que es necesario evitar fugas de electricidad, o que por motivo alguno se esté efectuando robo de luz, lo que ocasionaría problemas futuros.
En algunos inmuebles, no se cuenta con el fluido eléctrico, bien sea por la cancelación del mismo debido al estado de abandono del inmueble, como por tener la red interna, algún o algunos problemas para garantizar el perfecto suministro del mismo.
Se debe iniciar por revisar todo el inmueble en mención y realizar un cuidadoso inventario de las instalaciones eléctricas, el estado de las mismas, de los materiales que las componen, de los tubos que contengan redes si los hay, interruptores, tomas, etc; saber si existen contadores o no;
en términos generales dicho informe debe contener las principales falencias de la red y sus posibilidades de intervención en la misma, así como el material necesario para garantizar el fluido eléctrico adecuado según la maquinaria de construcción a utilizar, de acuerdo al informe inicial.
Una vez realizado lo anterior, se recurre a la segunda etapa de este apartado, verificar que el inmueble cuente con aparatos eléctricos en los espacios que se consideren necesarios mínimos, para garantizar el buen funcionamiento de la futura conservación y recuperación del inmueble.
Se siguen los mismos pasos que antes se describieron, mediante un cuidadoso inventario; debe tenerse en cuenta que el hecho que en un espacio exista un toma corriente, no garantiza que exista el fluido eléctrico en dicho espacio; por tanto debe realizarse el inventario.
De no contar con los aparatos y espacios necesarios mínimos dentro del inmueble, deben realizarse o adecuarse los espacios, partiendo como criterio para su localización, del inventario antes mencionado y su mejor y óptima ubicación.
Repartir una nueva red eléctrica en el inmueble a intervenir, debe ser una responsabilidad que tenga presente los siguientes puntos:
En toda obra de intervención es necesario la utilización de diversas herramientas Y equipos especiales que se usarán en diferentes o en todas las etapas dé la obra. Se hace entonces necesario proveer a la obra de un sitio adecuado para albergar este material.
Por lo general los equipos y herramientas son implementos de alto valor económico y en algunos casos de dimensiones considerables, lo que hace necesario tener en cuenta que el espacio destinado para este tipo de actividad debe ser amplio, alto y con una dimensión tal que permita fácilmente su traslado y almacenamiento.Las herramientas y equipos más comunes utilizados son palas, macetas, cinceles y toda la herramienta relacionada con la elaboración de apiques y calas; sin embargo y debido a que permanentemente es necesario alquilar equipo, también se debe almacenar en ciertas ocasiones andamios, ranas, aplanadoras, compactadoras, rotomartillos de percusión, mezcladoras, taladros y demás material eléctrico propio de una construcción.
Cuando no se pueda adecuar un espacio en el inmueble, se debe recurrir a la construcción de espacios provisionales en algún lugar que según el estudio inicial preliminar, cumpla con las expectativas propias de una obra de intervención o conservación además de estar ubicado estratégicamente.
Uno de los materiales más usados para la construcción del espacio es la tabla de madera; por lo general en la gran mayoría de las regiones del país, se instala montada un 10 % aproximadamente de forma horizontal, una sobre otra; con esto tenemos la posibilidad de permitir que el agua corra toda la pared sin el perjuicio que entre al interior.
Es necesario que en el interior del espacio, sea este adecuación de uno existente o construcción de uno nuevo, se instalen diferentes paños de almacenamiento de herramienta y equipo de acuerdo a las necesidades.
La adecuación de este espacio es bien interesante dentro de los espacios requeridos en toda obra de intervención y conservación.Se puede identificar tres funciones diferentes dentro de este contexto:
A pesar de que las tres funciones antes enumeradas sirven para la misma finalidad, la diferencia radica en la amplitud del espacio a utilizar, en si tiene la posibilidad de estar al aire libre, o por el contrario necesita estar a la intemperie y bastante protegido de climas extremos; otro factor que incide es la seguridad que debe brindar el espacio. Por lo general se dispone de un espacio cubierto y con buenas condiciones de seguridad para almacenar los
materiales comunes de toda obra de intervención; materiales que deben estar bajo seguridad por los costos,pequeño tamaño, o para impedir su pérdida. Para el material de río, de cantera, arena, ladrillo, etc; puede destinarse un espacio abierto, con buena circulación, amplio; buena ventilación. Es importante que el espacio sea amplio, que no presente riesgo alguno y pueda brindar la posibilidad de almacenar elementos y artículos especiales.
La adecuación de un espacio para la localización de testigos de resistencias de materiales, es algo similar al anterior, ventilados, con buenas circulaciones, pero como característica deben estar "cubiertos", puede ser ocasionalmente cerrados, pero es indispensable que estén cubiertos, pues se necesita, en el caso de los cilindros testigos de concreto, almacenar testigos de diferentes edades.
En cuanto al recubrimiento de estos espacios, cabe resaltar:
Para el espacio de bodega de materiales que comúnmente permanece cerrado, uno de los materiales más usados es la tabla de madera; por lo general en la gran mayoría de las regiones del país.
Para la cubierta se puede emplear teja de fibro cemento o teja ondulada metálica.
Para el espacio que contenga el material de río, es factible el empleo de cierres provisionales en tela de construcción, las láminas de
zinc liso, etc; es de recordar que el espacio puede perfectamente estar al aire libre a no ser que el tiempo climático sea extremo y se tenga que proteger los materiales de las inclemencias del tiempo, para que no se carguen de agua, o se derramen por todo el espacio.
Para el espacio de testigos de resistencia de materiales, se pueden seguir las mismas pautas descritas anteriormente, teniendo en cuenta que necesita cubierta, puede ser plástica, metal, fibro cemento; o una lona impermeable; lo importante es proteger del agua.
El espacio destinado para estas actividades, tiene las cualidades y características de una oficina con varios espacios o divisiones.
Debe estar bien iluminado tanto con luz artificial como por luz natural; bien ventilado; con piso firme, que tenga como mínimo los siguientes requerimientos:
La construcción que comúnmente cuenta con puertas y ventanas puede servir como espacio temporal, se puedan adaptar algunos espacios existentes dentro del inmueble; sin embargo en caso de ser imposible acomodar dichos espacios allí, uno de los materiales más usados para la construcción de estos espacios es la tabla de madera con las características de las construcciones antes mencionadas.
La forma de conformación, ubicación, construcción y función que desempeña este tipo de espacios, se parece a los pasos a seguir con la construcción de los espacios destinados para: " Almacén de los objetos y materiales de valor recuperados o desmontados durante el proceso de ejecución de obras".
La diferencia principal radica en que en los espacios destinados a los objetos y materiales recuperados, deben tener un archivo con el inventario detallado de cada pieza, perfectamente clasificada.
Además es necesario proveer al inmueble, ya en su etapa de conservación y o intervención, de un espacio lo más cercano posible a este, donde se empezará la etapa de consolidación, mantenimiento y reposición de estos objetos y piezas que se depositan allí.
Es necesario entonces que este nuevo espacio cuente con una mesa central amplia, donde sea factible trabajar
Apear: Sostener provisionalmente con armazones, maderos, etc; alguna construcción o elemento estructural.
Concreto: Compuesto de cemento; arena y grava o piedra. Existen varias clases de concreto:
Concreto Ciclópeo: Compuesto por arena, cemento, agua, piedra tamaño medio.
Concreto simple: Compuesto por arena, cemento, agua, gravilla triturada. Concreto reforzado: Contiene los mismos elementos del concreto simple, con un refuerzo de acero o hierro.
Desinfectar: Destruir o neutralizar las bacterias patógenas, utilizando un producto químico o natural, adecuado para tal fin.
Desinsectar: Limpiar de insectos patógenos cualquier elemento o espacio de una construcción.
Dosificación: Cantidades proporcionales en que deben ser mezclados los componentes de una mezcla (mortero, hormigón, aditivo, pintura, etc.).
Encofrado: Molde formado con tablas de madera o paneles modulares de metal, destinado a recibir o dar forma a la masa de concreto hasta su total endurecimiento.
Enchapar: Acción de colocar elementos sobre una superficie para embellecerla y/o protegerla.
Estuco: Material usado por el pintor como capa espesa que se aplica sobre superficies a pintar, para rellenar y alisar sus irregularidades.
Fachada: Frente exterior de un edificio o de una obra. Cara visible de una construcción. Se denominan acompañando a la palabra con la del punto cardinal, a que corresponde.
Fisura: Hendidura fina que puede presentar una superficie o bloque de concreto, arcilla o un recubrimiento defectuoso de pintura, asfalto, etc.
Impermeabilización: Proteger objetos o elementos con productos impermeables para evitar el paso de agua.
Jacena: Una de las vigas principales o maestras perteneciente a algún elemento o parte de la construcción.
Junta: Separación entre dos elementos continuos de una construcción. Material de relleno que se coloca entre dos piezas, para cerrar el espacio libre que pudiera quedar entre ellas.
Patología: Estudio de las afectaciones o enfermedades de carácter físico o químico, presentes en una construcción.
Según el inmueble que entregue el instructor, desarrollar los pasos necesarios para una adecuada propuesta de cierre provisional interior y exterior que incluya materiales, bosquejo de áreas de cierre provisional, cantidades de obra y presupuesto.
Por subgrupos de trabajo:
Por subgrupos de trabajo:
Entregado un sector del inmueble realizar la propuesta de demoliciones, erradicaciones, liberaciones y retiros que sean
necesarios; incluyendo presupuestos, materiales y tiempo de duración de la actividad.
Por subgrupos de trabajo:
Por subgrupos:
Realizar el inventario de instalaciones hidráulicas; eléctricas y el proyecto de replantes e instalaciones temporales necesarias para iniciar los trabajos de conservación de un inmueble dado. Debe incluir presupuesto, materiales y duración de la obra.
OCEANO GRUPO EDITORIAL. Biblioteca Atrium de la construcción. Tomos 2,3. Editorial Atrium S.A. Barcelona. 1993.
I.C.T, Instituto de crédito territorial, Sub gerencia técnica, división de auto construcción. Universidad La Gran Colombia, Facultad de Arquitectura. Así construyo mi vivienda. Bogotá 1986.
COLCULTURA (Instituto Colombiano de Cultura), Bienes Inmuebles cartilla de mantenimiento. Editorial Presencia. 1994. Bogotá. ISBN: 958-612-187-9.
FRANCO, Salamanca. Germán. Documento de ampliación al manual de levantamientos arquitectónicos y urbanos, de COLCULTURA.
SEDUE (Secretaría de desarrollo urbano y ecología de México), Manual técnico para la rehabilitación de edificaciones en el Centro Histórico en la ciudad de México. México.
SEDUE (Secretaría de desarrollo urbano y ecología de México), Especificaciones generales de restauración. México. 1981.
BARRERO, Alfonso. Preservación y restauración de monumentos arquitectónicos. Ediciones Pontificia Universidad Javeriana. Bogotá. 1973.
ROBLEDO, Castillo Jorge Enrique. La ciudad en la colonización antioqueña. Editorial Universidad Nacional. Bogotá. 1996. ISBN: 958-17-0162-1.
ROBLEDO, Castillo Jorge Enrique. La ciudad en la colonización antioqueña. Editorial Universidad Nacional. Bogotá. 1996. ISBN: 958-17-0162-1.
GALLEGO, López, Juan Carlos. La Decoración interior y exterior en la arquitectura republicana del Centro Histórico de Manizales, Tesoro escondido tras un manto de olvido colectivo. Investigación Universidad Católica de Manizales, Taller L.U.P.A (Laboratorio investigativo de Urbanismo, Patrimonio y Arquitectura). Manizales. 2005. Documento en constante construcción.
PLANIMETRIA. Proyecto de restauración Hospital de la Misericordia de Calarcá Quindío. Arq. Juan Manuel Sarmiento Nova.
PLANIMETRIA. Proyecto de restauración y guión Museográfico de la Casa de la Cultura Guillermo Botero de Pacora Caldas. Arq. Juan Manuel Sarmiento Nova.
PLANIMETRIA. Proyecto de restauración y mejoras locativas de la Casa Consistorial de VillaMaría Caldas. Arq. Juan Carlos Gallego López.

Escaneo y organización de textos Regional Caldas:
Luz Marelby Giraldo
Líder Biblioteca
José Julián Escobar
Auxiliar de Biblioteca
Cindy Nayely Taborda
Aprendiz Tecnóloga en asistencia administrativa
Equipo de gestión del Sistema de Bibliotecas:
Martha Luz Gutiérrez Ortega
Gestora Del Sistema De Bibliotecas SENA
Adriana Rincón Avendaño
Diseñadora Gráfica Líder Proyecto De Digitalización
Del SBS
Versión Digital:
Alberto Mario Angulo Flórez
Instructor SENA
Karime Andrea Montañez
Coordinadora a Cargo SBS
Brandon Steven Ramírez Carrero
Aprendiz Producción Multimedia SBS Centro de Gestión de Mercados, Logística y TIC’s
SENA – Bogotá

Centro de Gestión de Mercados, Logística y TIC’s
SENA – Bogotá
2012