Instalaciones Hidraulicas y Sanitarias. Griferia para lavamanos

Logo SENA Sistema de Bibliotecas SENA
llave individual para lavamanos. Cierre Corriente

Presentación
En el marco del convenio Sena- Asoceramistas, se ha propuesto diseñar y elaborar una serie de manuales técnicos para la instalación de griferías, ofreciendo así mismo una herramienta de consulta permanente al personal encargado de la obra o bien en proceso de formación o de especialización.

Objetivo Principal
Al consultar en forma permanente esta serie de manuales propuestos en el convenio Sena-Asoceramistas, el personal técnico encargado de las instalaciones hidráulicas y sanitarias de una obra, estará capacitado para reparar e instalar en forma eficiente cualquier tipo de grifería, demostrando calidad y seguridad en su desempeño profesional.

Grifería para Lavamanos
En esta entrega usted encontrará siete manuales técnicos, actualizados de acuerdo con el diseño, producción y mercadeo de la empresa productora y acorde con las pautas técnico pedagógico, para la instalación de Griferías para Lavamanos.

Los manuales técnicos para la Instalación de Griferías para Lavamanos, son los siguientes:

1. Llave Individual Cierre Corriente:
2. Llave Individual Cierre Rápido:
3. Llave Individual Cierre Automático:
4. Mezcladores Cierre Corriente:
5. Mezcladores Cierre Rápido:
6. Mezcladores Monocontrol:
7. Sifones para Lavamanos:

GUIA PARA LA UTILIZACION DE MANUALES.

Para una mejor utilización y aprovechamiento de los manuales técnicos, tenga en cuenta las siguientes consideraciones importantes:

A. Los manuales fueron diseñados para apoyar el proceso de capacitación realizado en talleres o centros de formación especialmente construidos para este fin.

B. Cada manual está referido a un tema específico, por lo tanto funciona de manera independiente, aunque forma parte de una serie de manuales de una grifería especial.

C. Esté atento a las explicaciones técnicas del Instructor encargado del proceso de capacitación, realice las prácticas propuestas por el mismo. Refuerce este proceso de formación, mediante el estudio cuidadoso del manual respectivo.

D. Una vez estudiado el manual, verifique los conocimientos adquiridos y aclare sus deficiencias o dudas técnicas mediante la discusión del tema en grupos de trabajo o bien con el Instructor.

E. Finalmente, permanezca informado de los cambios tecnológicos y solicite cualquier información adicional que usted considere necesaria para lograr un desempeño profesional-con una mejor calidad.

PRIMERA EDICION

CONTENIDOS TECNICOS:
Carlos Hernando Rosas R.- Sena.CNC.
Carlos Efrén lbarra G.- Grival

ASESORIA TECNICO-PEDAGOGICA:
Luis Eduardo Bustamante T.
Asesor División de Industria y de la Construcción. Sena

DIAGRAMACION:
Mario Alberto Salazar Z.
ILUSTRACION:
Departamento de Dibujo Grival

COMITE TECNICO:
Fernando Delgado H. Presidente Asoceramistas
Luis Fernando Jiménez C. Gerente Mercadeo - Grival
Juan Arias B.
Jefe Centro Nacional de la Construcción.

Producción Convenio:
SENA-ASOCERAMIST AS
SENA. Sección Publicaciones 1991.

TABLA DE CONTENIDOS

1. GENERALIDADES
1.1 Descripción
1.2 Partes
1.3 Funcionamiento

2. PROCESO TECNICO DE INSTALACION
2.1 Medidas de Instalación
2.2 Instalación

3. CONEXION A LA RED
3.1 Con Niples de Hierro Galvanizado
3.2 Con Niples de P.v.C.
3.3 Con Acoples Flexibles Metálicos

4. HERRAMIENTAS PARA LA INSTALACION

5. MANTENIMIENTO Y REPARACION

6. RECOMENDACIONES TECNICAS

1. GENERALIDADES

1.1 DESCRIPCION
Es un tipo de llave sencilla, que se caracteriza por su cierre tradicional o cierre corriente de la manija para permitir el paso del máximo caudal de agua al lavamanos, o interrumpirlo. Se instala en los lavamanos integrales pequeños, los cuales generalmente

Traen dispuesta una perforación para la llave en el centro o en sus extremos laterales.

1.2 PARTES
Las partes que conforman la llave individual, son las siguientes:

1

1.3 FUNCIONAMIENTO

llave individual
El funcionamiento de esta llave es muy sencillo: Al girar la manija hacia la izquierda, el vástago se eleva interrumpiendo el sello que forma el disco con el asiento de la llave, permitiendo así, el paso del agua. Al girar la manija en sentido contrario, nuevamente se produce el sello y se interrumpe el paso del agua.

3

2. PROCESO TECNICO DE INSTALACION

2.1 MEDIDAS DE INSTALACION

Las medidas de instalación generalmente recomendables para estos lavamanos, son las siguientes:
Medidas de instalacion
Sin embargo, antes de la instalación es importante, revisar la referencia del mismo y verificar las medidas que recomienda el fabricante.

5

2.2 INSTALACION

La instalación de la llave individual para lavamanos, se resume en los siguientes pasos:

Instalación de la Llave en el Lavamanos

La llave viene armada desde la fábrica y para su instalación, no necesita desarmarla, tome la llave del empaque y proceda de acuerdo al siguiente orden de pasos:

A. Inserte el empaque de caucho en el asiento de llave teniendo en cuenta que la parte escalonada del mismo

6

tubo












B. Por debajo de la porcelana inserte la arandela de fricción y la tuerca de ajuste, enrosque manualmente la tuerca, hasta que la llave quede perfectamente ajustada y en la posición correcta.

7

3. CONEXION A LA RED

Antes de fijar definitivamente el lavamanos a la pared se procede a la preparación de la acometida a la red, la cual puede hacerse de muchas formas diferentes, pero para el caso, citaremos únicamente tres métodos que pueden considerarse los más comunes.

3.1 CON NIPLES DE HIERRO GALVANIZADO

Aliste una reducción de copa de 1/2 pulgada por 1/4 de hierro galvanizado.

Niples

9

Niples
Tome el conjunto formado anteriormente y después de colocar el anillo de caucho sobre la parte escalonada del niple unión, enrosque la tuerca unión en la rosca de la llave individual.

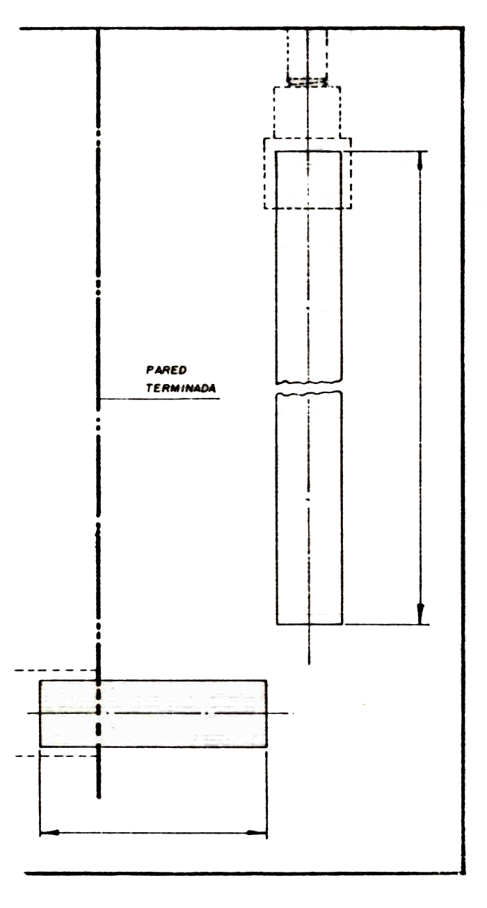
Coloque provisionalmente el lavamanos en la pared en la posición que quedará instalado, sin fijarlo definitivamente.

Tome las medidas de los niples necesarios para la conexión y retire el lavamanos. Observe el gráfico de la página siguiente.

10

pared terminada
Corte y rosque los niples de hierro galvanizado.

Utilizando un codo de hierro Galván izado de1/2 pulgada y después de aplicar cinta de teflón en las roscas de los ni pies forme la pieza que aparece en la figura, ajustando

Tubo
Convenientemente con llaves para tubos.

Desenrosque la tuerca unión de la base de la llave individual del lavamanos y enrosque la reducción De copa en el niple correspondiente de la pieza que acaba de formar.

11

Tubo Enrosque el otro extremo de la pieza, en el accesorio de la pared, ajustando con llaves para tubos. Verifique que el otro niple quede vertical.

Coloque el lavamanos en la pared en la posición que quedará instalado, haciendo coincidir la base de la llave individual del lavamanos con el ni pie unión. Después de fijar el lavamanos a la pared, enrosque manualmente la tuerca unión ajustando adecuadamente. Por último, permita el paso del agua y pruebe la instalación.

3.2 CON NIPLES DE P.V.C.
Generalmente, es recomendable, que toda tubería que quede instalada a la vista, sea metálica ya que estará expuesta a los golpes o al maltrato común en el momento de hacer aseo,

12

sin embargo en la práctica, debido al auge de las tuberías P.V.C., es muy frecuente realizar este tipo de conexiones con niples y accesorios de la misma tubería, para ello se procede con un método similar al descrito anteriormente, así: • Aliste un adaptador hembra P.V.C. de 1/2 pulgada por 1/4.

• Aplique cinta de teflón en la rosca de la acometida.

• Fije definitivamente el lavamanos a la pared.
P.V.C
• Tome el niple unión de la llave individual, insértele la tuerca unión y después de aplicarle cinta de teflón en la rosca, enrósquelo en el adaptador hembra de P.V.C. Termine de ajustarlo con un hombre solo o una llave para tubos número 6. Figura anterior.

13

Tubo • Coloque el anillo de caucho sobre la parte .escalonada del niple unión y enrosque la tuerca unión en la rosca de llave individual para lavamanos.

• Coloque provisionalmente el lavamanos en la pared en la posición que quedará instalado, pero sin fijarlo definitivamente.

tubo
• Tome las medidas de los ni pies de PVC, necesarios para la Instalación, corte los ni pies.

• Desenrosque la tuerca unión de la base de la llave individual del lavamanos.

14

• Con limpiador removedor y utilizando estopa o una bayetilla, limpie: el interior de las campanas del codo, el interior de la campana del adaptador hembra que contiene el niple unión, el interior de la campana del accesorio de la acometida de la pared y los espigas de los niples de PVC.
Tubo

• De acuerdo con las medidas correspondientes, utilizando soldadura líquida PVC, suelde el adaptador, los niples y el codo de 1/2 pulgada, conformando la pieza que se observa en la figura.

15

P.V.C
• Suelde la pieza de la acometida, en el accesorio de la pared, haciendo coincidir la superficie del niple unión que contiene el anillo de caucho, con la base de la llave individual del lavamanos.

• Por último, fije definitivamente el lavamanos y ajuste manualmente la tuerca unión.
Tubo
3.3 CON ACOPLES FLEXIBLES METÁLICOS.

• Si el accesorio de acometida de la pared, es de hierro galvanizado,corte y rosque un ni pie de del mismo material, de una longitud tal, que después de instalado sobresalga

16

Acoples flexibles metalicos 4.5 cms. de la pared terminada.

• Si el accesorio de acometida de la pared, es de PVC, disponga un Ni pie con un adaptador macho de ½” en un extremo, teniendo en cuenta que la dimensión citada en el punto anterior;" esta vez se toma hasta el borde del adaptador.

•Aplique cinta de teflón en la rosca de la acometida.

Niple •Deseche el niple unión y su anillo de caucho de la llave individual para lavamanos y solamente conserve la tuerca unión.

17

•Coloque provisionalmente el acople flexible y determine la medida adecuada para un acople correcto, teniendo en cuenta que el extremo del acople, solamente debe penetrar por la base de la llave individual, una longitud de 2.0 cms.

• Por el extremo liso del acople, inserte en su orden:
Acople La tuerca unión de la llave individual,La arandela de fricción y El empaque de caucho escalonado que viene con el acople flexible.Deseche el empaque y la arandela de fricción grandes del acople flexible.

• Introduzca el extremo correspondiente del acople por la base de la llave individual y enrosque, en primer lugar la tuerca de la acometida ajustándola convenientemente con llaves expansivas, coloque el escudo y posteriormente proceda a ajustar manualmente la tuerca unión de llave individual.

18

Tubo

• Por último, permita el paso del agua y pruebe la instalación.

19

4. HERRAMIENTAS PARA LA INSTALACION

herramientas de instalacion
1. Destornillador
2. Llave expansiva
3. Llave para tubos
4. Flexómetro y Cinta Teflón

21

5. MANTENIMIENTO Y REPARACION

Dado que el mecanismo de funcionamiento de la llave individual para lavamanos (cierre corriente) es muy sencillo, las fallas que puedan presentarse, también son muy eventuales, sin embargo se anexa la siguiente información, como una guía, en caso de posibles reparaciones.

MANIJA FLOJA.
Causas:
- Tornillo de sujeción suelto.

REPARACIÓN:
Retirar el botón índice de la manija y ajustar el tornillo de sujeción.

ESCAPE DE AGUA ENTRE EL VASTAGO y LA TUERCA PRENSAESTOPAS.

Causa:
- Empaque de la tuerca prensaestopas o del interior del vástago, deteriorados.

23

REPARACION: Desenroscar la tuerca prensaestopas, retirar el vástago, revisar empaques y reemplazar el empaque defectuoso.

GOTEO POR LA NARIZ, DESPUES DE CERRADA LA LLAVE.

Causa:
- Empaque del disco asiento,Defectuoso.

REPARACION:
Retirar el vástago, revisar empaque del disco asiento del vástago y reemplazarlo si se halla deteriorado.

ESCAPE DE AGUA POR LA TUERCA UNION DE LA BASE DE LA LLAVE INDIVIDUAL. Causa:

REPARACIÓN:


Revisar el empaque, reemplazarlo si se encuentra deteriorado y ajustar la tuerca unión adecuadamente.

Los repuestos para esta llave, se encuentran disponibles en el mercado local.

24

6. RECOMENDACIONES TECNICAS.

> Por ningún motivo utilice hilazas o grasas de tipo mineral o vegetal como sellantes en las roscas

> No trate las tuercas con llaves para tubo, algunas sólo se ajustan manualmente.
Llave de lavamanos

26

> Para el manejo de las tuercas metálicas, utilice llaves expansivas.

> Antes de instalar la acometida, proceda a drenar la tubería dejando escapar momentáneamente el agua, así

evitará que los residuos que quedan en la red después de la instalación, puedan afectar el normal funcionamiento de la llave.

>Revise y siga ordenadamente las recomendaciones técnicas de la presente guía, se evitará contratiempos.

NOTA.

El proceso de instalación del sifón del lavamanos, lo encontrará en la cartilla 11 SIFONES PARA LAVAMANOS”.

27

CRÉDITOS VERSION DIGITAL

Escaneo y organización de textos Regional Caldas

Luz Marelby Giraldo
Líder Biblioteca

José Julián Escobar
Auxiliar de Biblioteca

Cindy Nayely Taborda
Aprendiz Tecnóloga en asistencia administrativa


Equipo de gestión del Sistema de Bibliotecas:

Martha Luz Gutiérrez Ortega
Gestora Del Sistema De Bibliotecas SENA

Adriana Rincón Avendaño
Diseñadora Gráfica Líder Proyecto De Digitalización Del SBS

28

Versión Digital:

Alberto Mario Angulo Flórez
Instructor SENA

Karime Andrea Montañez
Coordinadora a Cargo SBS

Ana Karina Vargas Alvarez
Aprendiz Producción Multimedia SBS Centro de Gestión de Mercados, Logística y TIC’s
SENA – Bogotá

logo sena

Centro de Gestión de Mercados, Logística y TIC’s
SENA – Bogotá
2012

29